
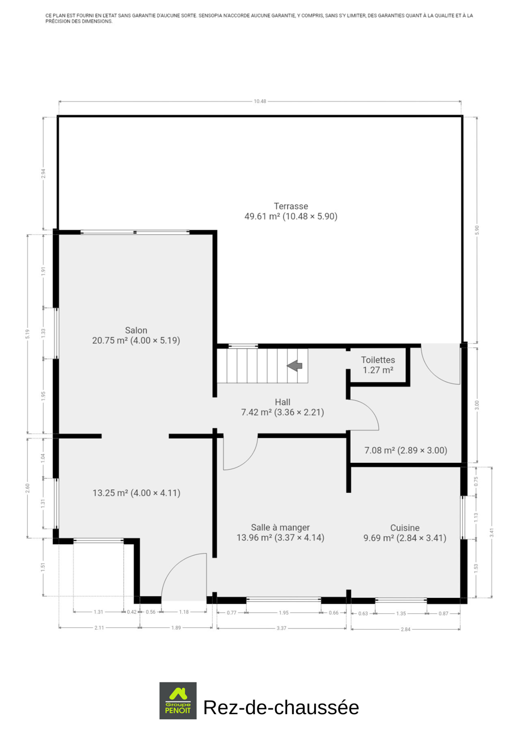
Située dans le charmant village d’Harzé, en pleine campagne tout en restant accessible, cette maison à l’état de gros œuvre fermé représente une opportunité idéale pour les amateurs de tranquillité souhaitant personnaliser leur futur lieu de vie. Le rez-de-chaussée se compose d’un espace salon de 21m², d’une salle à manger attenante de 14m², et d’une cuisine de 10m². Vous y trouverez également une première toilette indépendante, ainsi qu’un espace pouvant être aménagé en buanderie ou pièce de rangement selon vos besoins. À l’étage, la maison propose trois chambres de 14, 15 et 16m², idéales pour accueillir une famille ou aménager un bureau. Une salle de bain de 7m² ainsi qu'un grenier de 19 m² offrant un espace de rangement supplémentaire. Le bien dispose également d’une cave de 21m², parfaite pour le stockage, ainsi que d’un garage de 19m². À l’extérieur, vous profiterez d’une belle terrasse de 50 m², idéal pour les moments de détente en plein air. Le jardin s’étend sur une parcelle de 626m². Ce bien constitue une belle opportunité de créer une habitation à votre image, dans un environnement calme et verdoyant. N'attendez plus pour la découvrir! Infos et visites au 04/338.42.32, ou retrouvez toutes les informations sur www.penoit.be.
Rue de Bastogne 94 - 4920 Aywaille
Référence | 6807509 |
---|---|
Catégorie | Maison |
Meublé | Non |
Nombre de chambres | 3 |
Nombre de salles de bain | 1 |
Jardin | Oui |
Surface du jardin | 626 m² |
Garage | Oui |
Terrasse | Oui |
Parking | Oui |
Surface habitable | 153 m² |
Surface du terrain | 829 m² |
Disponibilité | 01/05/2025 |
Année de construction | 1950 |
---|---|
Nombre de garage | 1 |
Nombre d'étages | 1 |
---|
Accès handicapés | Non |
---|---|
Ascenseur | Non |
Double vitrage | Oui |
Chauffage (type) | Pas installé |
Type de cuisine | non-équipée |
Double vitrage (type) | isol. thermique et acoustique |
Nbre de toilette(s) (nombre) | 2 |
---|---|
Chambre 1 (surface) | 14 m² |
Chambre 2 (surface) | 15 m² |
Chambre 3 (surface) | 16 m² |
Salle de séjour (surface) | 21 m² |
Salle à manger (surface) | 14 m² |
Cuisine (surface) | 10 m² |
Salle de bain 1 (surface) | 7 m² |
Piscine | Non |
---|
Sous régime TVA | Non |
---|
Type d'environnement | Vue dégagée |
---|---|
Risque d'inondation (type innondation) | pas situé en zone inondable |
Surface de terrasse 1 | 50 m² |
---|
Certificat d'électricité (oui/non) | non |
---|
Label PEB (classe) | G |
---|---|
PEB E-SPEC (kwh/m²/an) | 875 |
Emission CO2 (émission CO2) | 225 |
PEB code unique | 20250522006445 |