Maison - option v. - 4870 Trooz -

Maison - à vendre - 4870 Trooz
3 1 159 m² 1 PEB : B

Description

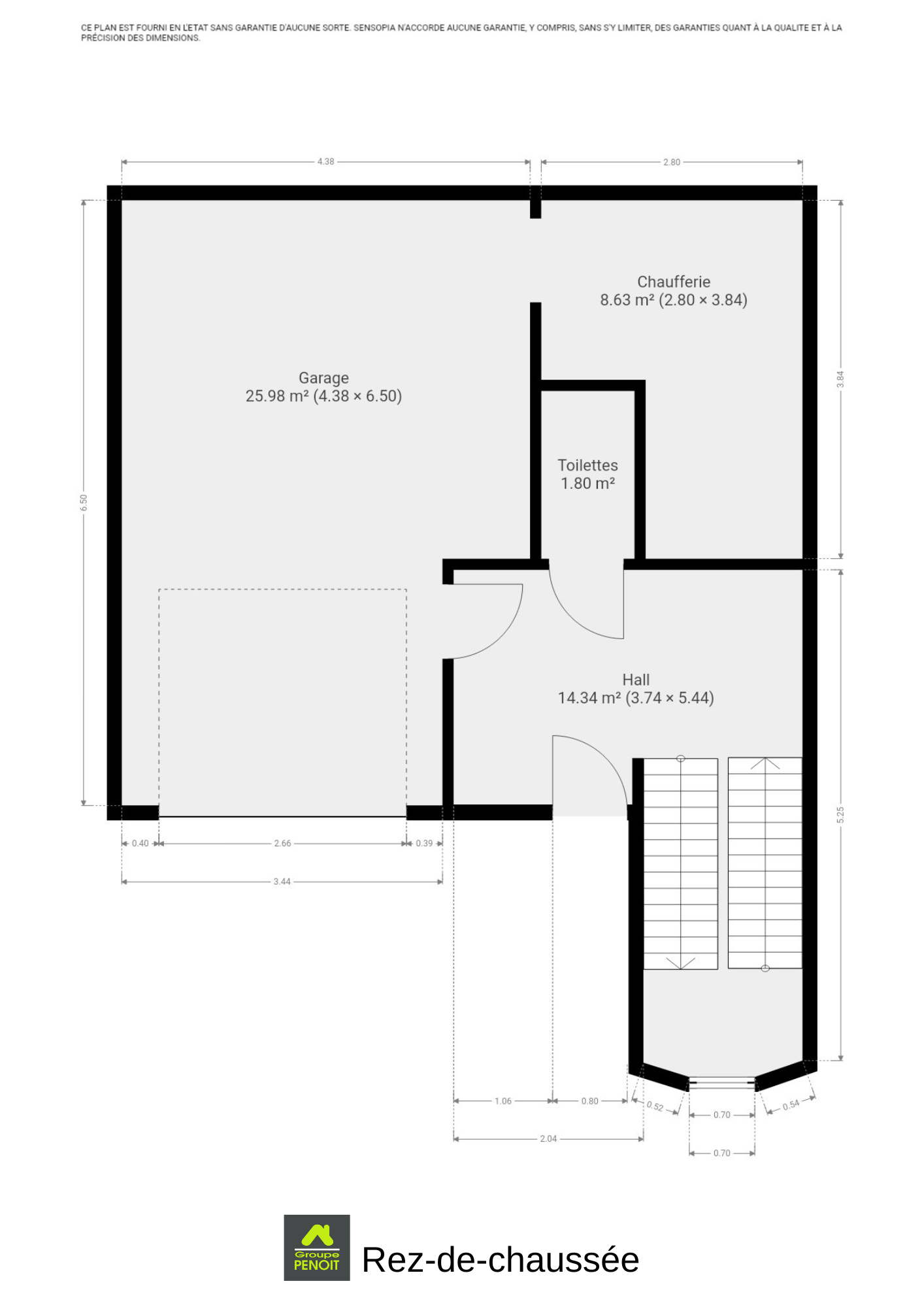
À vendre : magnifique maison bel-étage de 3 chambres située à Trooz. Au rez-de-chaussée, vous découvrirez un hall d'entrée menant à une toilette indépendante, un garage avec une très grande hauteur sous plafond 26m² ainsi qu'un espace chaufferie de 9m². Le premier étage se compose d'un espace salon et salle à manger (40m²) et d'une cuisine ouverte de 11m². À l'étage supérieur, l'espace nuit accueille trois chambres de 11m², 12m² et 17m², ainsi qu'une salle de bain avec toilette de 7m². Le bien dispose également d'une terrasse de 23m² et d'un jardin de 425m². Un emplacement de parking est prévu à l'avant de la maison. Parmi les équipements : Panneaux photovoltaïques, volets électriques à l'arrière de la maison, air conditionné avec pompe à chaleur, chauffage central au mazout avec une citerne de 1500 litres, châssis en PVC double vitrage et électricité conforme. Performances énergétiques : PEB B (numéro unique : 20240225014817) avec un E Spec de 90 kWh/m².an et un E Total de 14 278 kWh/an. N'attendez plus pour venir la découvrir ! Infos et visites au 04/338.42.32, ou retrouvez toutes les informations sur www.penoit.be.

Adresse

Rue Sainry 197 A - 4870 Trooz

Documents

Général

Référence 6829072
Catégorie Maison
Meublé Non
Nombre de chambres 3
Nombre de salles de bain 1
Jardin Oui
Surface du jardin 425 m²
Garage Oui
Terrasse Oui
Parking Oui
Surface habitable 159 m²
Surface du terrain 594 m²
Disponibilité 01/08/2025

Bâtiment

Année de construction 2005
Nombre de garage 1
Parking intérieur Non

Nom, catégorie & situation

Nombre d'étages (numéro) 2

Equipement de base

Accès handicapés Non
Chauffage (ind/coll) (type (ind/coll)) Chauffage mural
Ascenseur Non
Double vitrage Oui
Chauffage (Format/energie) Chauffage mural
Type de cuisine équipée
Sdb (Type) bain

Équipements techniques

Air conditionné Oui
Châssis (Ouvertures) pvc

En chiffres

Nbre de toilette(s) (nombre) 2
Chambre 1 (surface) 11 m²
Chambre 2 (surface) 12 m²
Chambre 3 (surface) 17 m²
Salle de séjour (surface) 22 m²
Salle à manger (surface) 17 m²
Cuisine (surface) 11 m²

Sécurité

Volets Oui
Sécurité Oui
Détails volets (type) Electriques
Alarme Oui

Equipement extérieur

Piscine Non

Charges & Rendement

Sous régime TVA Non

Raccordements

Égouts Oui

Spécificités terrain

Type d'environnement calme
Risque d'inondation (type innondation) zone innondable potentielle

Caractéristiques Principales

Surface de terrasse 1 23 m²

Type de matériau & évaluation

Type de revêtement de sol carrelages

Certificats / Attestations

Capacité de la citerne à mazout 1500
Certificat d'électricité (oui/non) oui, conforme
Certificat électricité - date 03/11/2003

Cadastre

Revenu cadastral (€) (montant) 1068 €

Divers

Grenier Oui

Energie

Label PEB (Classe) B
PEB E-SPEC (kwh/m²/an) (Consommation énergétique) 90
Emission CO2 (Emission GES) 3981
E total (Kwh/an) 14278
PEB code unique (-) 20240225014817
PEB valide jusqu'au (validité) 25/02/2024
Date du PEB 25/02/2034
Prendre contact pour le bien : 6829072

* Champs obligatoires

Préférences pour les cookies

La protection de vos données personnelles est importante pour nous. C’est pourquoi nous détaillons ci-dessous les différents services et fonctionnalités du site qui utilisent des cookies et nous vous laissons décider des cookies que vous souhaitez autoriser ou refuser.

Veuillez cependant noter que si vous bloquez certains types de cookies, cela pourrait impacter votre expérience de navigation sur notre site ainsi que les fonctionnalités disponibles.

Nous utilisons des cookies fonctionnels obligatoires pour assurer le bon fonctionnement du site. Ils sont, par exemple, nécessaires pour retrouver le résultat d’une recherche ou enregistrer le choix de la langue.

Certaines fonctionnalités, comme l’affichage de vidéos ou de cartes géographiques, sont assurées via des composants externes développés par des partenaires comme YouTube ou Google. Certains composants utilisent des cookies qui sont susceptibles de permettre à ces tiers de suivre le comportement des internautes afin, par exemple, de réaliser du ciblage publicitaire. L’activation de ces fonctionnalités et des cookies associés est donc soumis à votre consentement.