Maison - option v. - 4400 Flémalle -

Maison - à vendre - 4400 Flémalle
4 1 243 m² 1 3 PEB : B

Description

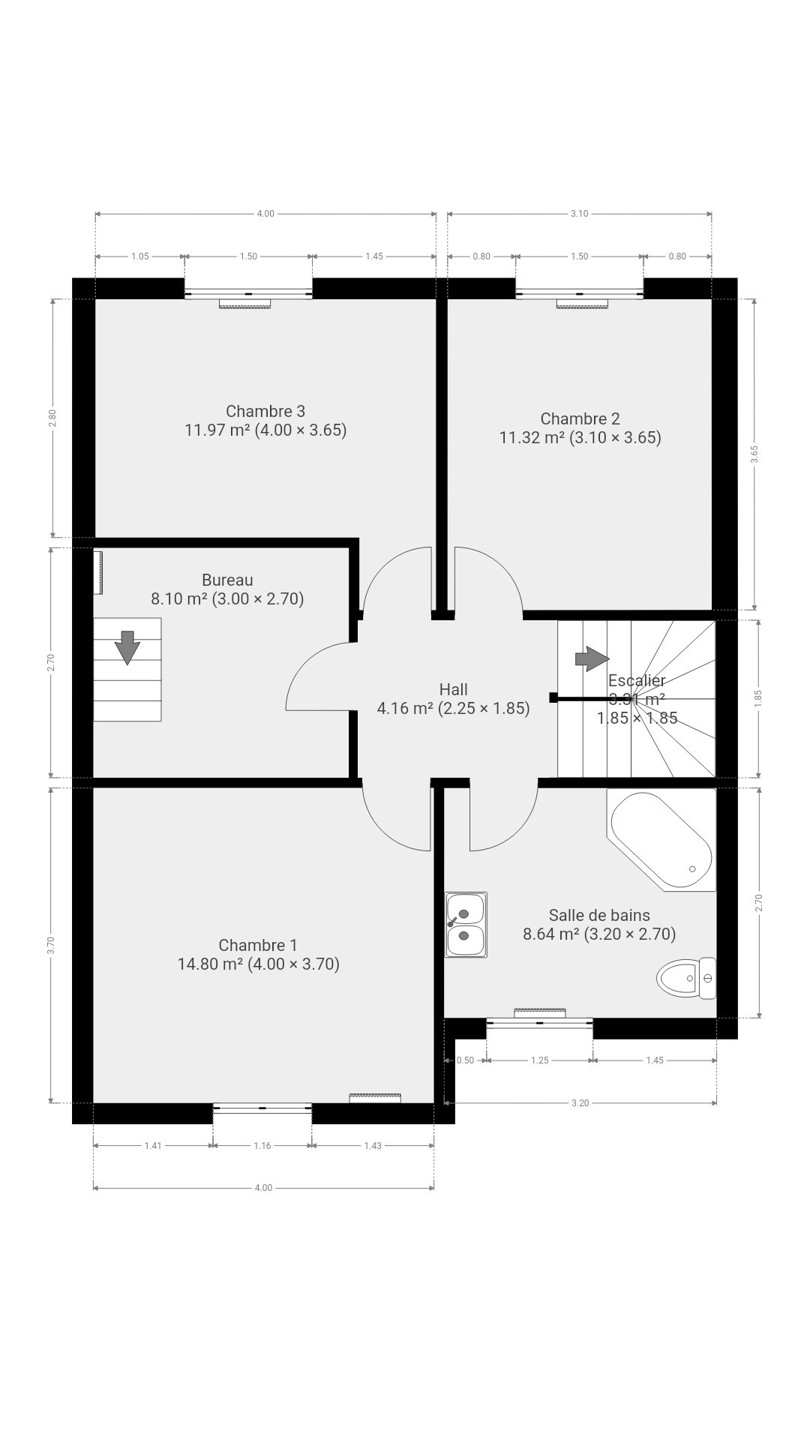
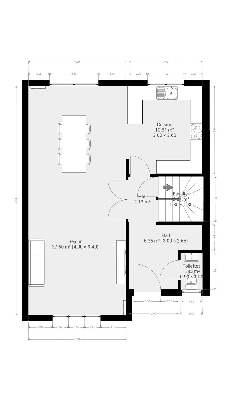
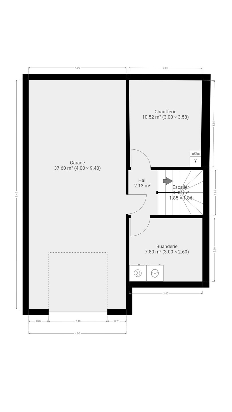
Magnifique maison 4 chambres située à Flémalle datant de 2010. Au rez-de-chaussée; un hall d'entrée, un salon (19m²), une cuisine + une salle à manger (29m²), un WC indépendant. Au premier étage ; hall de nuit, 3 chambres (11m², 12m² et 15m²), une salle de bain (8m²) et d'un bureau (8m²). Au deuxième étage ; une grande chambre (25m²). La maison dispose d'un garage (37m²) accompagné d'une buanderie (8m²) et d'un espace chaufferie (10m²). Le bien a également une terrasse (30m²) et un jardin (236m²) orienter vers le nord . Il y a 1 emplacement de parking devant la maison. Chauffage central au gaz à condensation. Châssis double vitrage en pvc. Electricité conforme. Citerne d'eau de pluie de (7500L). Indice PEB: B ; Numéro unique : 20240906013196 ; E Spec: 115 kWh/m².an ; E Total : 27 951 KWh/an.. Revenu cadastral de (1.074€) N'hésitez plus et venez la découvrir ! Infos et visites : 04/338.42.32 - Soir et week-end : 0471/64.89.30 mais aussi sur www.penoit.be

Adresse

Rue du Bois Garguenne 67 - 4400 Flémalle

Général

Référence 6298920
Catégorie Maison
Meublé Non
Nombre de chambres 4
Nombre de salles de bain 1
Jardin Oui
Surface du jardin 236 m²
Garage Oui
Terrasse Oui
Parking Oui
Surface habitable 243 m²
Surface du terrain 385 m²
Disponibilité 01/01/2025

Bâtiment

Année de construction 2010
Nombre de garage 1
Parking intérieur Oui
Parking extérieur Oui
Parking(s) intérieur (nombre) 2
Parking(s) extérieur (nombre) 1
Type de toit en pente

Nom, catégorie & situation

Nombre d'étages (numéro) 3

Equipement de base

Accès handicapés Non
Ascenseur Non
Chauffage (Format/energie) gaz (chau. centr.)
Type de cuisine équipée
Sdb (Type) bain

Spécificités terrain

Orientation du bâtiment (-) sud
Type d'environnement calme
Exposition de la façade avant (-) sud
Risque d'inondation (type innondation) pas situé en zone inondable

En chiffres

Surface de terrasse 2 30 m²
Nbre de toilette(s) (nombre) 2
Chambre 1 (surface) 15 m²
Chambre 2 (surface) 11 m²
Chambre 3 (surface) 12 m²
Chambre 4 (surface) 25 m²
Nbre de terrasse(s) (nombre) 1
Salle de séjour (surface) 19 m²
Salle à manger (surface) 19 m²
Cuisine (surface) 11 m²
Salle de bain 1 (surface) 8 m²
Bureau (surface) 8 m²

Divers

Buanderie Oui
Cave Oui

Sécurité

Volets Oui
Détails volets (type) Manuels
Alarme Oui

À proximité

Magasins (distance (m)) 7
Écoles (distance (m)) 10
Transports en commun (distance (m)) 4
Magasins Oui
Ecoles Oui
Transports en commun Oui
Autoroute Oui
Autoroute (distance (m)) 5

Coûts & Frais

Précompte immobilier (montant) 1250 €

Equipement extérieur

Piscine Non
Citerne d'eau Oui

Charges & Rendement

Sous régime TVA Non

Domaine juridique

Jugement en cours Non
Permis de bâtir Oui
Permis de lotir Non
Droit de préemption Non
Affectation urbanistique zone d'habitat

Raccordements

Égouts Oui
Électricité Oui
Gaz Oui
Eau Oui

Équipements techniques

Châssis (Ouvertures) pvc

Certificats / Attestations

Attestation du sol Oui
Certificat d'électricité (oui/non) oui, conforme

Caractéristiques Principales

Surface de terrasse 1 30 m²

Type de matériau & évaluation

Type de revêtement de sol carrelages

Cadastre

Revenu cadastral (€) (montant) 1074 €

Energie

Label PEB (Classe) B
PEB E-SPEC (kwh/m²/an) (Consommation énergétique) 115
Emission CO2 (Emission GES) 22
E total (Kwh/an) 27951
PEB code unique (-) 20240906013196
PEB valide jusqu'au (validité) 06/09/2034
Date du PEB 06/09/2024
Prendre contact pour le bien : 6298920

* Champs obligatoires

Préférences pour les cookies

La protection de vos données personnelles est importante pour nous. C’est pourquoi nous détaillons ci-dessous les différents services et fonctionnalités du site qui utilisent des cookies et nous vous laissons décider des cookies que vous souhaitez autoriser ou refuser.

Veuillez cependant noter que si vous bloquez certains types de cookies, cela pourrait impacter votre expérience de navigation sur notre site ainsi que les fonctionnalités disponibles.

Nous utilisons des cookies fonctionnels obligatoires pour assurer le bon fonctionnement du site. Ils sont, par exemple, nécessaires pour retrouver le résultat d’une recherche ou enregistrer le choix de la langue.

Certaines fonctionnalités, comme l’affichage de vidéos ou de cartes géographiques, sont assurées via des composants externes développés par des partenaires comme YouTube ou Google. Certains composants utilisent des cookies qui sont susceptibles de permettre à ces tiers de suivre le comportement des internautes afin, par exemple, de réaliser du ciblage publicitaire. L’activation de ces fonctionnalités et des cookies associés est donc soumis à votre consentement.