
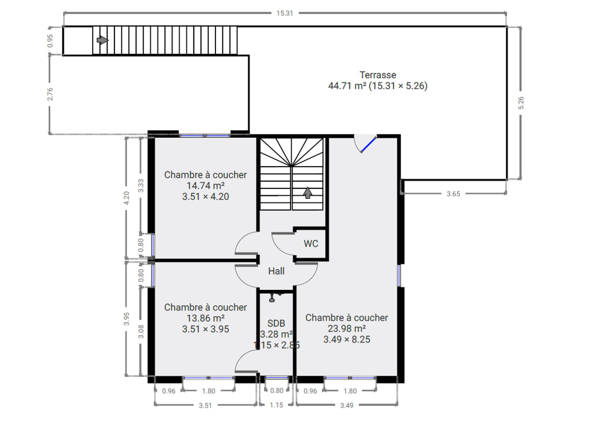
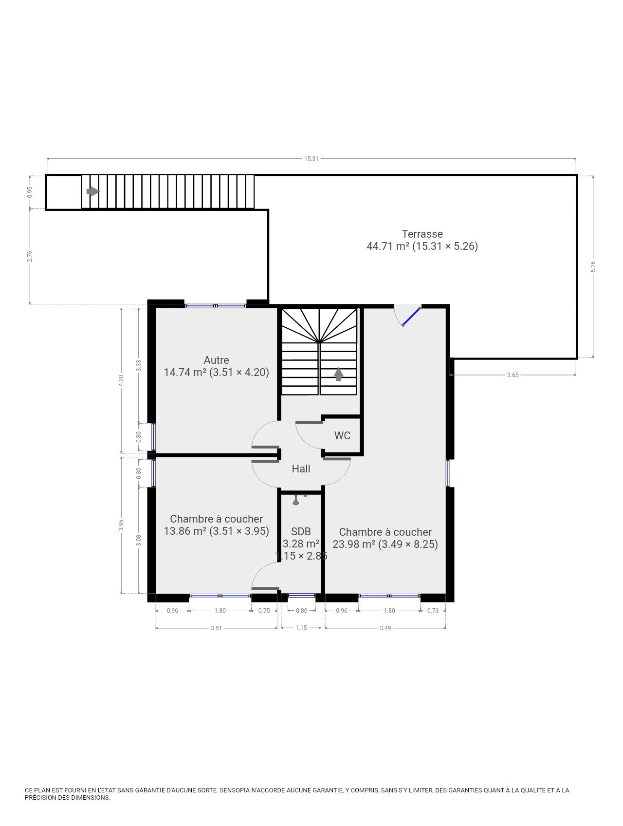
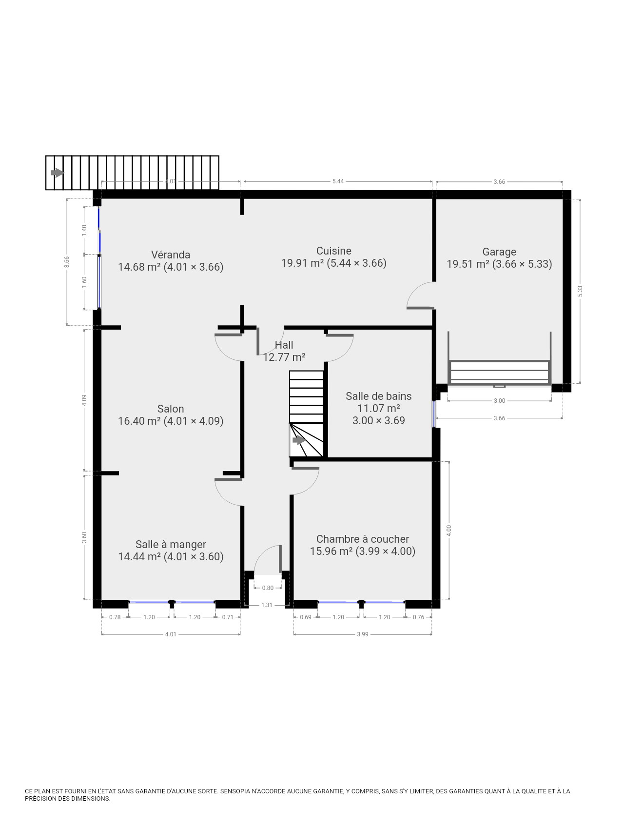
Cette agréable maison 4 chambres sur les hauteurs d'Ivoz-Ramet, vous séduira par ses nombreuses possibilités et ses espaces. Le rez de chaussée se compose d'un hall d'entrée, d'une chambre, d'un salon et d'une salle à manger en enfilade donnant sur une véranda lumineuse et sur la magnifique cuisine super équipée placée il y a quelques mois (budget 20 000€). La salle de bain avec baignoire et son wc finissent de compléter ce niveau. A l'étage, vous découvrirez une suite parentale avec salle de douche fraichement refaite, une deuxième chambre et pour terminer une troisième grande chambre donnant sur la terrasse. A l'extérieur, une terrasse aménagée avec une piscine mais aussi un jardin à repenser selon vos envies (pour l'instant un poulailler est installé sur les hauteurs de celui-ci).
Rue des Maquisards 20 - 4400 Flémalle Ivoz-Ramet
Référence | 4891952 |
---|---|
Catégorie | Maison |
Meublé | Non |
Nombre de chambres | 4 |
Jardin | Oui |
Surface du jardin | 643 m² |
Garage | Oui |
Terrasse | Oui |
Parking | Oui |
Surface du terrain | 880 m² |
Disponibilité | à l'acte |
Nombre d'étages | 1 |
---|
Nombre de garage | 1 |
---|---|
Parking intérieur | Oui |
Parking extérieur | Oui |
Parking(s) extérieur (nombre) | 1 |
Cuisine | Oui |
---|---|
Chauffage (ind/coll) (type (ind/coll)) | individuel |
Ascenseur | Non |
Chauffage (type) | mazout (chauf. centr.) |
Piscine | Oui |
---|
Revenu cad. indexé (montant) | 930 € |
---|
Sous régime TVA | Non |
---|---|
Loué | Non |
Servitude | Non |
---|---|
Jugement en cours | Non |
Égouts | Oui |
---|---|
Électricité | Oui |
Télévision par cable | Oui |
Gaz | Oui |
Câbles téléphoniques | Oui |
Eau | Oui |
Certificat d'électricité (oui/non) | oui, conforme |
---|---|
Certificat électricité - date | 15/10/2019 |
Label PEB (classe) | B |
---|---|
PEB E-SPEC (kwh/m²/an) | 167 |
E total (Kwh/an) | 34848 |
PEB code unique | 20220712024779 |
PEB valide jusqu'au (datetime) | 12/07/2032 |