
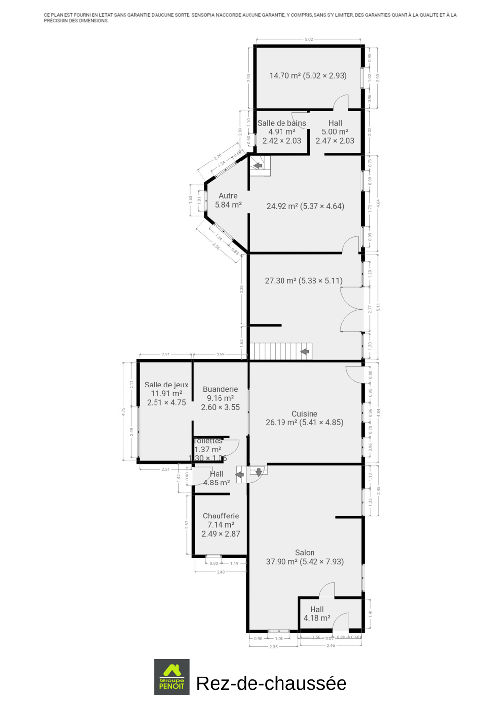
Nous vous proposons à la vente ce bien immobilier atypique situé aux Awirs, dans un quartier paisible. Il s'agit de deux habitations regroupées, dont la majeure partie a déjà été rénovée. La première partie s’ouvre, au rez-de-chaussée, sur un séjour spacieux de 38 m² menant à une belle cuisine lumineuse de 26m². Vous y trouverez également une buanderie de 9 m² donnant accès à une salle de jeux de 12m², ainsi qu’une première toilette indépendante. À l’étage, le premier espace nuit comprend deux grandes chambres de 17m² et 23m², une salle de bain de 11m² équipée d’une douche, d’une baignoire, d’un double lavabo et d’une deuxième toilette, ainsi qu’un dressing de 3m². La seconde partie du bien offre plusieurs grands volumes, pour un total de 73m², entièrement modulables selon vos besoins. Une deuxième salle de bain de 5m² avec toilette vient compléter ce rez-de-chaussée. À l’étage, une première chambre de 23m² a déjà été aménagée en suite parentale, tandis qu’une deuxième pièce de 25m² reste à aménager. À l’extérieur, plusieurs ateliers permettent le stockage ou l’aménagement d’un espace de travail. Le bien dispose également d’une vaste terrasse de 105m² et d’un grand jardin exposé plein sud, d’une superficie de 1 195m². PEB D (numéro unique : 20250711001056) avec un E Spec de 298 kWh/m².an et un E Total de 60 954 kWh/an. N'attendez plus pour venir la découvrir ! Infos et visites au 04/338.42.32, ou retrouvez toutes les informations sur www.penoit.be.
rue hena 43 - 4400 Flémalle Awirs
Référence | 6880732 |
---|---|
Catégorie | Maison |
Meublé | Non |
Nombre de chambres | 3 |
Nombre de salles de bain | 2 |
Jardin | Oui |
Surface du jardin | 1195 m² |
Garage | Non |
Terrasse | Oui |
Parking | Oui |
Surface habitable | 424 m² |
Surface du terrain | 1335 m² |
Disponibilité | 15/07/2025 |
Année de construction | 1850 |
---|---|
Parking intérieur | Non |
Parking extérieur | Non |
Nombre d'étages | 2 |
---|
Accès handicapés | Non |
---|---|
Cuisine | Oui |
Chauffage (ind/coll) (type (ind/coll)) | Chauffage mural |
Ascenseur | Non |
Double vitrage | Oui |
Chauffage (type) | mazout (chauf. centr.) |
Type de cuisine | équipée |
Sdb (type) | douche et bain |
Double vitrage (type) | isol. thermique et acoustique |
Buanderie | Oui |
---|---|
Grenier | Oui |
Cave | Oui |
Nbre de toilette(s) (nombre) | 2 |
---|---|
Chambre 1 (surface) | 17 m² |
Chambre 2 (surface) | 17 m² |
Chambre 3 (surface) | 23 m² |
Salle de séjour (surface) | 38 m² |
Cuisine (surface) | 26 m² |
Piscine | Non |
---|
Sous régime TVA | Non |
---|
Égouts | Oui |
---|---|
Électricité | Oui |
Gaz | Oui |
Eau | Oui |
Châssis (type) | pvc |
---|
Type d'environnement | Vue dégagée |
---|---|
Risque d'inondation (type innondation) | pas situé en zone inondable |
Surface de terrasse 1 | 105 m² |
---|
Type de revêtement de sol | carrelages |
---|
Magasins | Oui |
---|---|
Ecoles | Oui |
Transports en commun | Oui |
Centre sportif | Oui |
Certificat d'électricité (oui/non) | oui, conforme |
---|
Label PEB (classe) | D |
---|---|
PEB E-SPEC (kwh/m²/an) | 298 |
Emission CO2 (émission CO2) | 73 |
E total (Kwh/an) | 60954 |
PEB code unique | 20250711001056 |