Maison - option v. - 4130 Esneux -

Maison - à vendre - 4130 Esneux
4 1 173 m² 1 3 PEB : D

Description

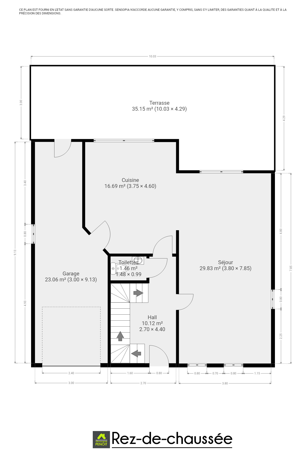
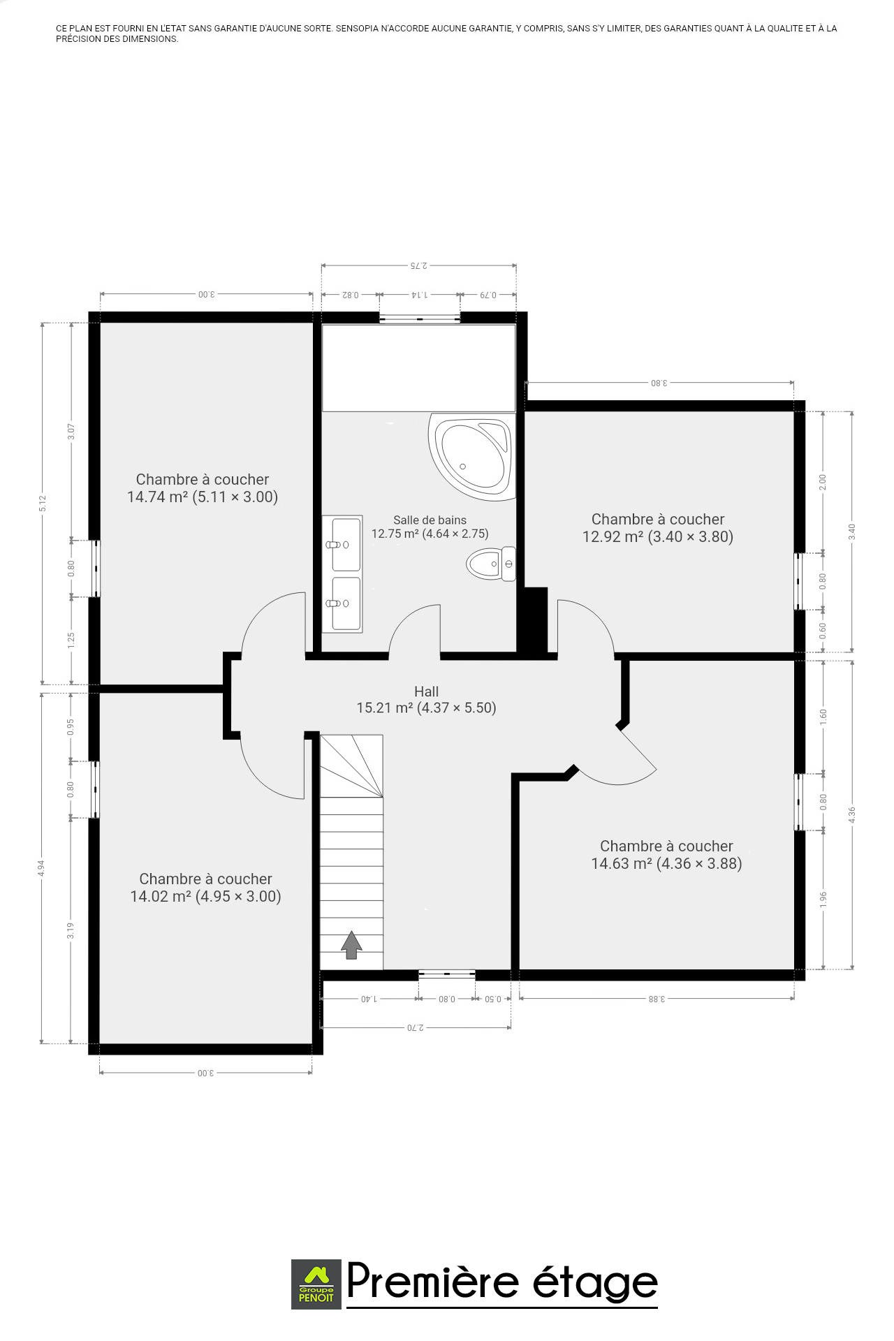
Très jolie villa 4 façades située à Tilff dans une rue sans issue, composée d'un salon - salle à manger (30m²) avec poêle à bois, une cuisine équipée dinatoire (17m²), 4 chambres (15,13,15,14m²) une salle de bain avec baignoire, douche et double éviers (13m²), 4 caves ( 7,17,13,12m²), chauffage central au mazout, châssis double vitrage en bois, superbe jardin et terrasse donnant sur la nature, garage 1 voiture (23m²)- citerne eau de pluie. PEB D Numéro unique: 20240627004449, E Spec : 295 kWh/m².an. E Total : 51126 kWh/an Rapport électrique non conforme. Revenu cadastral en attente. Signature des actes dès janvier, possibilité de bénéficier des frais d'enregistrements à 3% ! Infos et visites : 04/338.42.32 - Soir et week-end : 0471/64.89.30 mais aussi sur www.penoit.be

Adresse

Rue Baoufontaine 3 - 4130 Esneux

Documents

Général

Référence 6307447
Catégorie Maison
Meublé Non
Nombre de chambres 4
Nombre de salles de bain 1
Jardin Oui
Surface du jardin 430 m²
Garage Oui
Terrasse Oui
Parking Oui
Surface habitable 173 m²
Surface du terrain 725 m²
Disponibilité 03/02/2025

Bâtiment

Année de construction 1998
Nombre de garage 1
Parking intérieur Oui
Parking extérieur Oui
Parking(s) intérieur (nombre) 1
Parking(s) extérieur (nombre) 2
Type de toit en pente

Nom, catégorie & situation

Nombre d'étages (numéro) 2

Equipement de base

Accès handicapés Non
Cuisine Oui
Chauffage (ind/coll) (type (ind/coll)) Chauffage par bloc
Ascenseur Non
Double vitrage Oui
Chauffage (Format/energie) mazout (chauf. centr.)
Type de cuisine super-équipée
Sdb (Type) douche et bain
Double vitrage (type) isol. thermique

Spécificités terrain

Orientation du bâtiment (-) sud
Type d'environnement boisé
Exposition de la façade avant (-) sud
Risque d'inondation (type innondation) pas situé en zone inondable

En chiffres

Largeur front de rue 11
Surface bâtie (surf. bât. princ.) 116
Nbre de toilette(s) (nombre) 2
Chambre 1 (surface) 15 m²
Chambre 2 (surface) 13 m²
Chambre 3 (surface) 15 m²
Chambre 4 (surface) 14 m²
Nbre de terrasse(s) (nombre) 1
Salle de séjour (surface) 30 m²
Cuisine (surface) 17 m²
Salle de bain 1 (surface) 13 m²
Orientation de la terrasse 1 (-) nord

Equipement extérieur

Piscine Non
Citerne d'eau Oui

Charges & Rendement

Sous régime TVA Non

Domaine juridique

Servitude Non
Jugement en cours Non
Permis de bâtir Oui
Permis de lotir Oui
Destination bâtiment (type) privé - habitation
Droit de préemption Non
Affectation urbanistique zone d'habitat
Intimation en justice Non

Raccordements

Égouts Non
Électricité Oui
Télévision par cable Oui
Câbles téléphoniques Oui
Eau Oui

Équipements techniques

Châssis (Ouvertures) bois

Certificats / Attestations

Attestation du sol Oui
Certificat d'électricité (oui/non) oui, non conforme
Certificat électricité - date 26/06/2024

Caractéristiques Principales

Surface de terrasse 1 35 m²

Cadastre

Numéro (n°) D303l

À proximité

Magasins Oui
Ecoles Oui
Centre sportif Oui
Autoroute Oui

Divers

Cave Oui

Energie

Label PEB (Classe) D
PEB E-SPEC (kwh/m²/an) (Consommation énergétique) 295
Emission CO2 (Emission GES) 73
E total (Kwh/an) 51126
PEB code unique (-) 20240627004449
PEB valide jusqu'au (validité) 27/06/2034
Date du PEB 27/06/2024
Prendre contact pour le bien : 6307447

* Champs obligatoires

Préférences pour les cookies

La protection de vos données personnelles est importante pour nous. C’est pourquoi nous détaillons ci-dessous les différents services et fonctionnalités du site qui utilisent des cookies et nous vous laissons décider des cookies que vous souhaitez autoriser ou refuser.

Veuillez cependant noter que si vous bloquez certains types de cookies, cela pourrait impacter votre expérience de navigation sur notre site ainsi que les fonctionnalités disponibles.

Nous utilisons des cookies fonctionnels obligatoires pour assurer le bon fonctionnement du site. Ils sont, par exemple, nécessaires pour retrouver le résultat d’une recherche ou enregistrer le choix de la langue.

Certaines fonctionnalités, comme l’affichage de vidéos ou de cartes géographiques, sont assurées via des composants externes développés par des partenaires comme YouTube ou Google. Certains composants utilisent des cookies qui sont susceptibles de permettre à ces tiers de suivre le comportement des internautes afin, par exemple, de réaliser du ciblage publicitaire. L’activation de ces fonctionnalités et des cookies associés est donc soumis à votre consentement.