
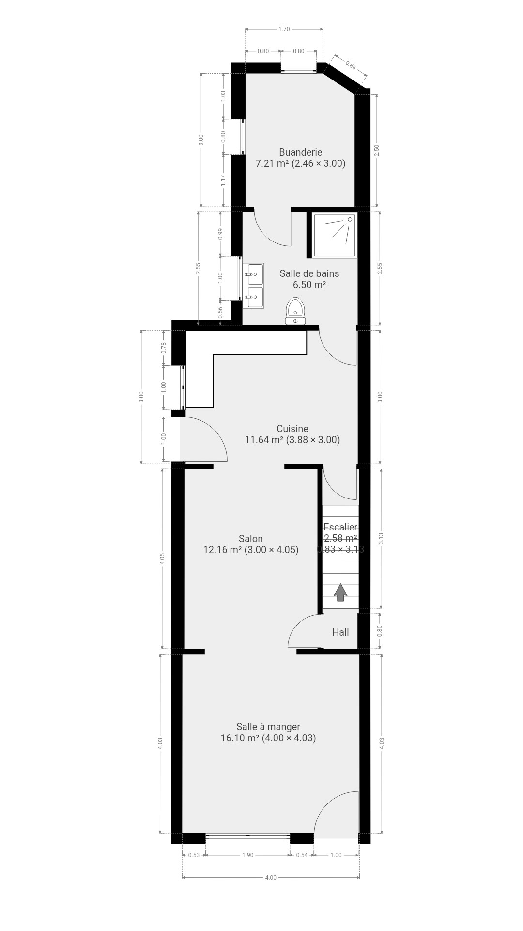
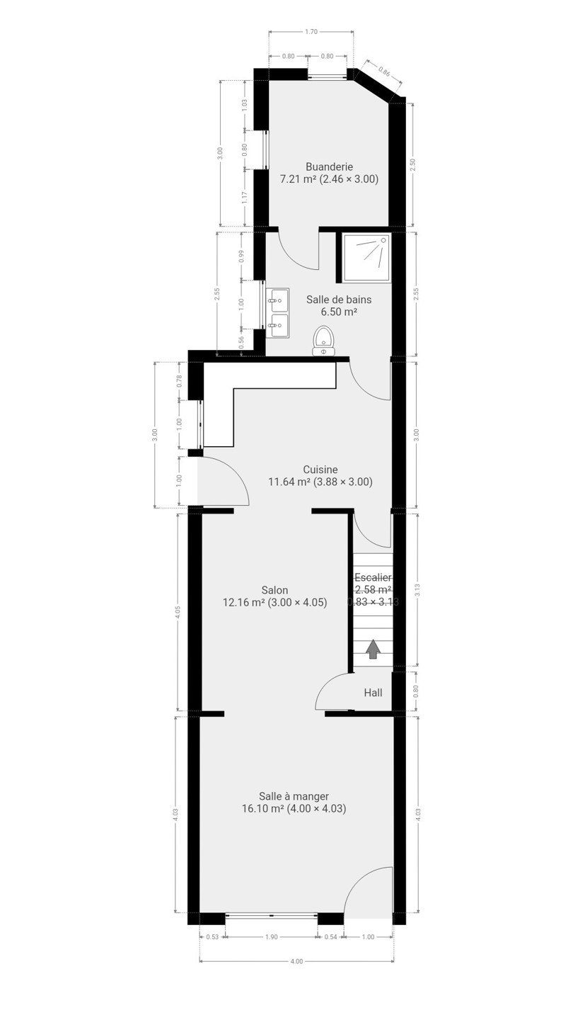
Au rez-de-chaussée : un séjour (28m²), cuisine (12m²), une salle de douche (7m²) et une buanderie (7m²). Au premier étage : deux chambres ( 16 et 12m²). Au deuxième étage : une chambre (22m²) avec un espace rangement (4m²). Le bien possède une terrasse et un jardin. Chauffage central au gaz. Revenu cadastral modeste de 616€ ! Indice PEB: F ; Numéro unique : 20240801012267 ; E Spec: 451 kWh/m².an ; E Total : 67 762 KWh/an. N'hésitez plus et venez la découvrir !! Infos et Visites : 04/338.42.32 - Soir et Week-end : 0498/59.32.24 ou sur www.penoit.be
Rue du Laveu 138 - 4101 Seraing/Jemeppe-sur-Meuse
Référence | 6115788 |
---|---|
Catégorie | Maison |
Meublé | Non |
Nombre de chambres | 3 |
Nombre de salles de bain | 1 |
Jardin | Oui |
Surface du jardin | 50 m² |
Garage | Non |
Terrasse | Oui |
Parking | Non |
Surface habitable | 114 m² |
Surface du terrain | 200 m² |
Disponibilité | 01/11/2024 |
Année de construction | 1950 |
---|---|
Parking intérieur | Non |
Parking extérieur | Non |
Année de rénovation | 2020 |
Type de toit | en pente |
Nombre d'étages | 2 |
---|
Accès handicapés | Non |
---|---|
Cuisine | Oui |
Chauffage (ind/coll) (type (ind/coll)) | individuel |
Ascenseur | Non |
Double vitrage | Oui |
Chauffage (type) | gaz (chau. centr.) |
Type de cuisine | équipée |
Sdb (type) | douche |
Orientation du bâtiment (façade arrière) | sud-est |
---|---|
Type d'environnement | calme |
Type d'environnement 2 | calme |
Exposition de la façade avant | ouest |
Risque d'inondation (type innondation) | pas situé en zone inondable |
Largeur front de rue | 7 |
---|---|
Surface bâtie (surf. bât. princ.) | 90 |
Nbre de toilette(s) (nombre) | 1 |
Chambre 1 (surface) | 12 m² |
Chambre 2 (surface) | 16 m² |
Chambre 3 (surface) | 22 m² |
Largeur de façade | 5 |
Nbre de terrasse(s) (nombre) | 1 |
Salle de séjour (surface) | 28 m² |
Salle à manger (surface) | 16 m² |
Cuisine (surface) | 12 m² |
Orientation de la terrasse 1 | sud-est |
Volets | Oui |
---|
Piscine | Non |
---|
Sous régime TVA | Non |
---|---|
Loué | Non |
Servitude | Oui |
---|---|
Jugement en cours | Non |
Permis de bâtir | Oui |
Destination bâtiment (type) | privé - unifamilial |
Droit de préemption | Non |
Affectation urbanistique | zone d'habitat |
Intimation en justice | Non |
Égouts | Oui |
---|---|
Électricité | Oui |
Gaz | Oui |
Eau | Oui |
Châssis (type) | pvc |
---|
Surface de terrasse 1 | 19 m² |
---|
Type de revêtement de sol | carrelages |
---|
Revenu cadastral (€) (montant) | 616 € |
---|
Magasins | Oui |
---|---|
Ecoles | Oui |
Transports en commun | Oui |
Centre sportif | Oui |
Autoroute | Oui |
Certificat d'électricité (oui/non) | oui, non conforme |
---|---|
Certificat électricité - date | 31/07/2024 |
Cave | Oui |
---|
Label PEB (classe) | F |
---|---|
PEB E-SPEC (kwh/m²/an) | 451 |
Emission CO2 (émission CO2) | 82 |
E total (Kwh/an) | 67762 |
PEB code unique | 20240801012267 |
PEB valide jusqu'au (datetime) | 01/08/2034 |
Date du PEB (datetime) | 01/08/2024 |