Maison - à vendre - 4100 Seraing - 174 000 €

Maison - à vendre - 4100 Seraing
2 1 121 m² PEB : D

Description

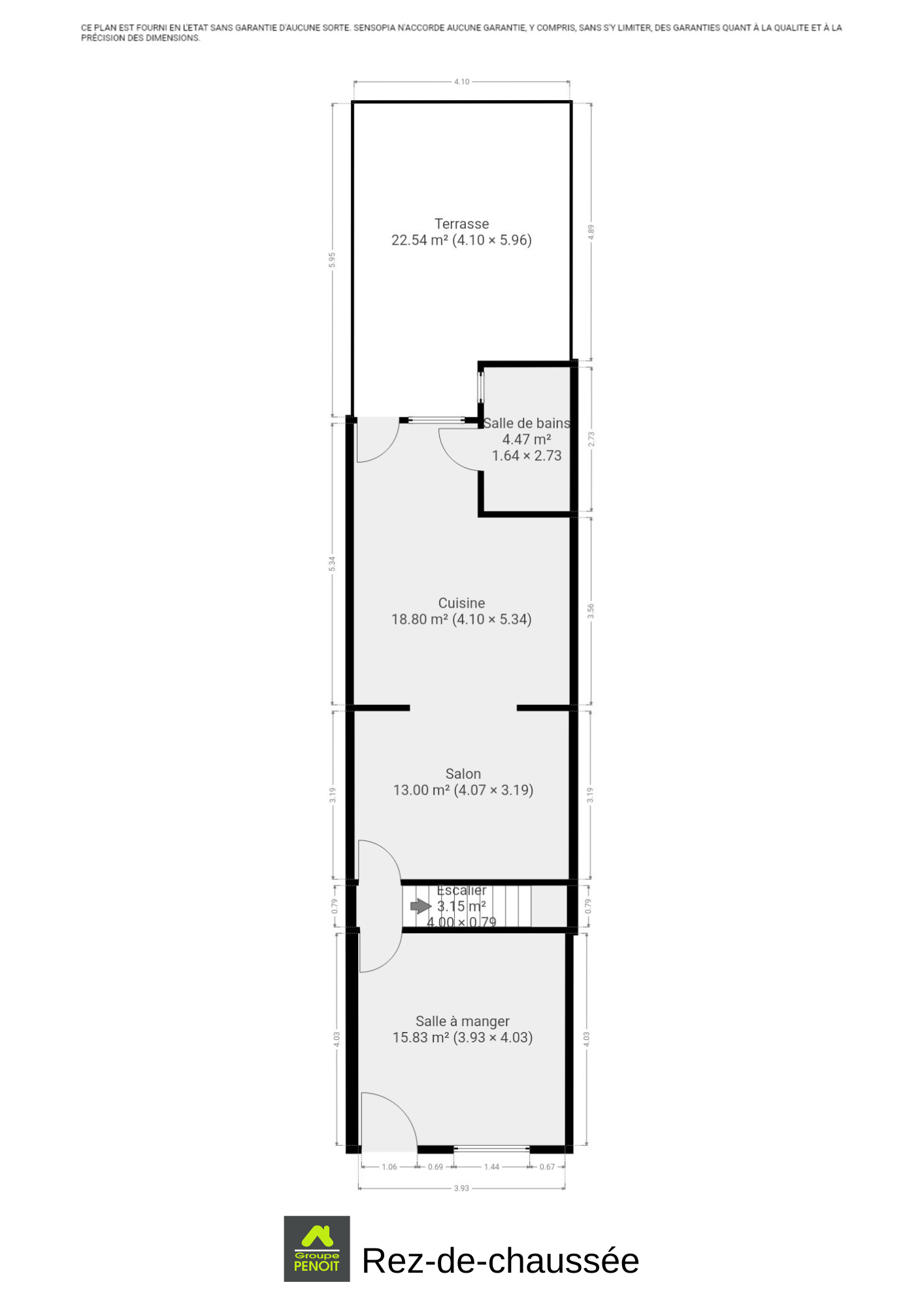
Le Groupe PENOIT vous présente cette charmante maison 2 chambres. Située rue de l'Échelle, cette maison offre un quotidien très pratique. Vous rejoignez écoles, commerces et transports à pied. L'A604, située à moins de 2 km, vous connecte rapidement aux principaux pôles d'activité comme Bierset et le Sart-Tilman. Ce bien est actuellement loué et l’acquéreur devra se soumettre aux obligations locatives en vigueur. COMPOSITION : Rez-de-chaussée : Une salle à manger, un salon ouvert sur une cuisine et une salle de bain. 1 er étage : Un hall de nuit donnant accès aux 2 chambres. 2 ème étage : Un grenier aménagé de presque 20m². Sous-sol : Une cave pour vos rangements. En extérieur, vous bénéficiez d'une cours carrelée. TECHNIQUES : Châssis PVC DV (Porte fenêtre arrière) et Alu SV. Chaudière gaz à condensation. Electricité NOK. PEB D (N°20250513020261) avec un E spec de 311kWh/m².an et un E total de 37.682kWh/an. Demande de renseignements et planification de visite par téléphone au 04/338.42.32 ou par mail à l’adresse immobilier@penoit.be.

Adresse

Rue de l'Echelle 240 - 4100 Seraing

Documents

Général

Référence 7613929
Catégorie Maison
Meublé Non
Nombre de chambres 2
Nombre de salles de bain 1
Garage Non
Terrasse Oui
Parking Non
Surface habitable 121 m²
Surface du terrain 80 m²
Disponibilité 01/08/2025

Bâtiment

Année de construction 1925
Nombre de garage 0
Parking intérieur Non
Parking extérieur Non
Parking(s) intérieur (nombre) 0
Parking(s) extérieur (nombre) 0
Type de toit en pente

Nom, catégorie & situation

Nombre d'étages 3

Equipement de base

Accès handicapés Non
Chauffage (ind/coll) (type (ind/coll)) Chauffage mural
Ascenseur Non
Double vitrage Oui
Chauffage (type) gaz
Type de cuisine équipée
Sdb (type) douche
Double vitrage (type) isol. thermique et acoustique

En chiffres

Surface bâtie (surf. bât. princ.) 56
Nbre de toilette(s) (nombre) 1
Chambre 1 (surface) 16 m²
Chambre 2 (surface) 13 m²
Nbre de terrasse(s) (nombre) 1
Salle de séjour (surface) 13 m²
Salle à manger (surface) 16 m²
Cuisine (surface) 19 m²
Salle de bain 1 (surface) 4 m²

Equipement extérieur

Piscine Non

Cadastre

Revenu cad. indexé (montant) 421 €
Section E
Numéro (n°) 0514V7P0000
Surface (ha/a/ca) (surf. (ha/a/ca)) 80
Revenu cadastral (€) (montant) 421 €

Charges & Rendement

Sous régime TVA Non
Loué Oui

Domaine juridique

Servitude Non
Jugement en cours Non
Permis de bâtir Non
Permis de lotir Non
Destination bâtiment (type) privé - habitation
Droit de préemption Non
Affectation urbanistique zone d'habitat
Intimation en justice Non

Équipements techniques

Châssis (type) aluminium ou pvc

Spécificités terrain

Type d'environnement banlieue
Risque d'inondation (type innondation) pas situé en zone inondable
Type de zone inondable zone riveraine délimitée

Caractéristiques Principales

Surface de terrasse 1 22 m²

Type de matériau & évaluation

Type de revêtement de sol carrelages

Certificats / Attestations

Certificat d'électricité (oui/non) oui, non conforme

Divers

Grenier Oui
Cave Oui

Certificats énergétiques

Label PEB (classe) D
PEB E-SPEC (kwh/m²/an) 311
Emission CO2 (émission CO2) 57
E total (Kwh/an) 37682
PEB code unique 20250513020261
PEB valide jusqu'au (datetime) 13/05/2035
Date du PEB (datetime) 13/05/2025
Prendre contact pour le bien : 7613929

* Champs obligatoires

Préférences pour les cookies

La protection de vos données personnelles est importante pour nous. C’est pourquoi nous détaillons ci-dessous les différents services et fonctionnalités du site qui utilisent des cookies et nous vous laissons décider des cookies que vous souhaitez autoriser ou refuser.

Veuillez cependant noter que si vous bloquez certains types de cookies, cela pourrait impacter votre expérience de navigation sur notre site ainsi que les fonctionnalités disponibles.

Nous utilisons des cookies fonctionnels obligatoires pour assurer le bon fonctionnement du site. Ils sont, par exemple, nécessaires pour retrouver le résultat d’une recherche ou enregistrer le choix de la langue.

Certaines fonctionnalités, comme l’affichage de vidéos ou de cartes géographiques, sont assurées via des composants externes développés par des partenaires comme YouTube ou Google. Certains composants utilisent des cookies qui sont susceptibles de permettre à ces tiers de suivre le comportement des internautes afin, par exemple, de réaliser du ciblage publicitaire. L’activation de ces fonctionnalités et des cookies associés est donc soumis à votre consentement.