
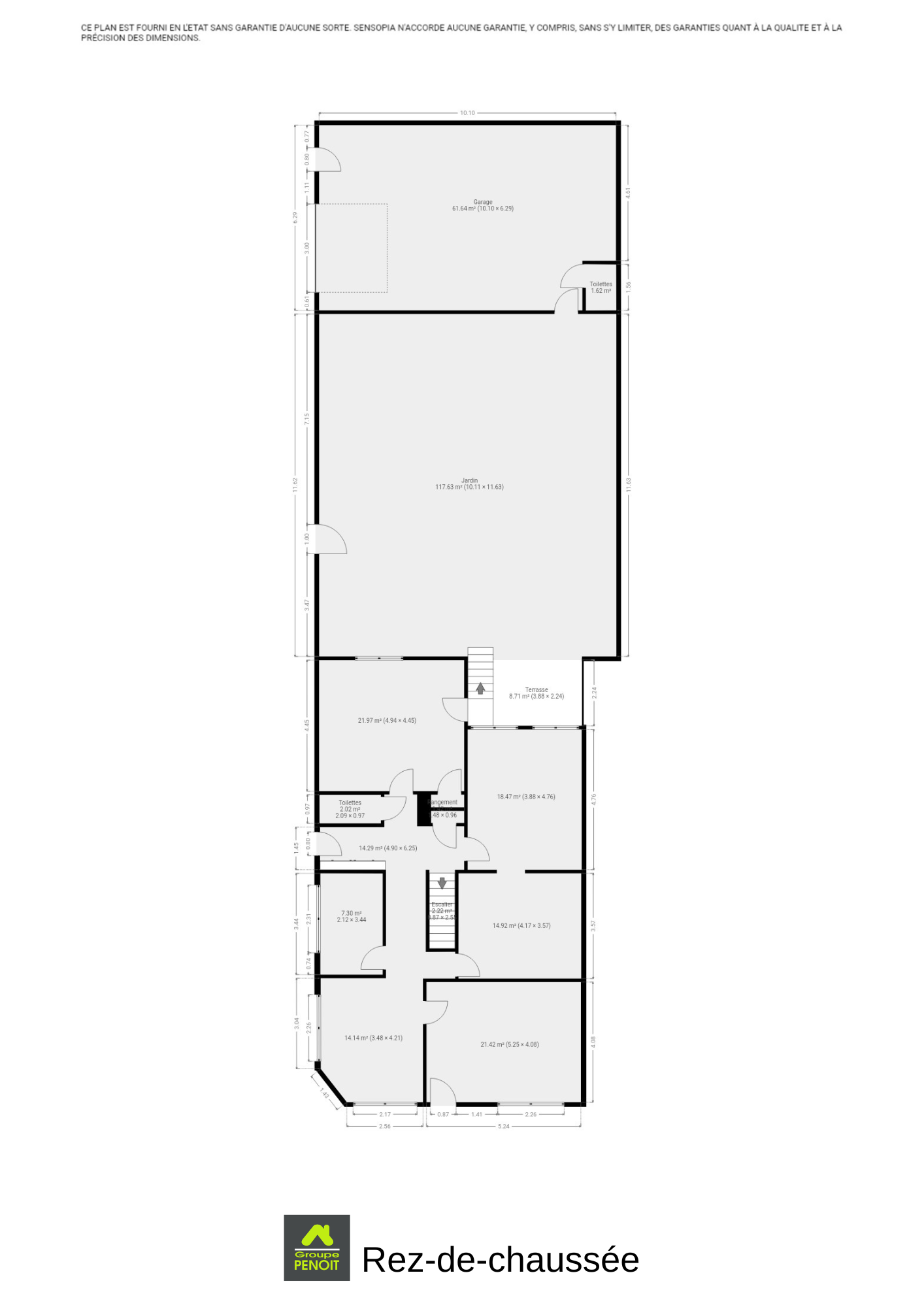
Spacieuse maison 3 façades de 314 m² offrant un fort potentiel. Actuellement utilisé en bureaux, il peut être réaménagé en une grande maison familiale ou en plusieurs logements avec au moins six chambres. Le rez-de-chaussée de 97 m² comprend six pièces lumineuses avec plusieurs arrivées d’eau et une toilette. Le premier étage offre 52 m² répartis en quatre pièces avec un second sanitaire, et le deuxième étage 58 m² avec trois pièces supplémentaires et un troisième sanitaire, idéal pour des chambres ou un espace parental. Un vaste sous-sol de 113 m² est entièrement aménageable selon vos besoins : cave, salle de jeux ou rangement. À l’extérieur, une terrasse de 8 m², un jardin de 118 m² et un garage de 62 m² avec porte électrique complètent le bien. L'installation électrique est conforme, le chauffage est central au gaz de ville, les châssis sont en PVC double vitrage. Le bien dispose également d’un système d’alarme et de vidéosurveillance. PEB D (numéro unique : 20250513017244) avec un E Spec de 264 kWh/m².an et un E Total de 82 710 kWh/an. N'attendez plus pour venir la découvrir ! Infos et visites au 04/338.42.32, ou retrouvez toutes les informations sur www.penoit.be.
Rue Ferrer 176 - 4100 Seraing
Référence | 7216530 |
---|---|
Catégorie | Maison |
Meublé | Non |
Nombre de chambres | 6 |
Jardin | Oui |
Surface du jardin | 118 m² |
Garage | Oui |
Terrasse | Oui |
Surface habitable | 314 m² |
Surface du terrain | 360 m² |
Disponibilité | 26/05/2025 |
Année de construction | 1950 |
---|---|
Nombre de garage | 1 |
Parking intérieur | Oui |
Parking extérieur | Non |
Nombre d'étages | 2 |
---|
Accès handicapés | Non |
---|---|
Ascenseur | Non |
Double vitrage | Oui |
Chauffage (type) | gaz (chau. centr.) |
Type de cuisine | non-équipée |
Double vitrage (type) | isol. thermique et acoustique |
Nbre de toilette(s) (nombre) | 4 |
---|---|
Chambre 1 (surface) | 0 m² |
Chambre 2 (surface) | 0 m² |
Chambre 3 (surface) | 0 m² |
Chambre 4 (surface) | 0 m² |
Chambre 5 (surface) | 0 m² |
Piscine | Non |
---|
Sous régime TVA | Non |
---|
Châssis (type) | pvc |
---|
Type d'environnement | central |
---|---|
Risque d'inondation (type innondation) | pas situé en zone inondable |
Surface de terrasse 1 | 9 m² |
---|
Certificat d'électricité (oui/non) | oui, conforme |
---|
Label PEB (classe) | D |
---|---|
PEB E-SPEC (kwh/m²/an) | 264 |
Emission CO2 (émission CO2) | 48 |
E total (Kwh/an) | 82710 |
PEB code unique | 20250513017244 |
PEB valide jusqu'au (datetime) | 13/05/2035 |
Date du PEB (datetime) | 13/05/2025 |