
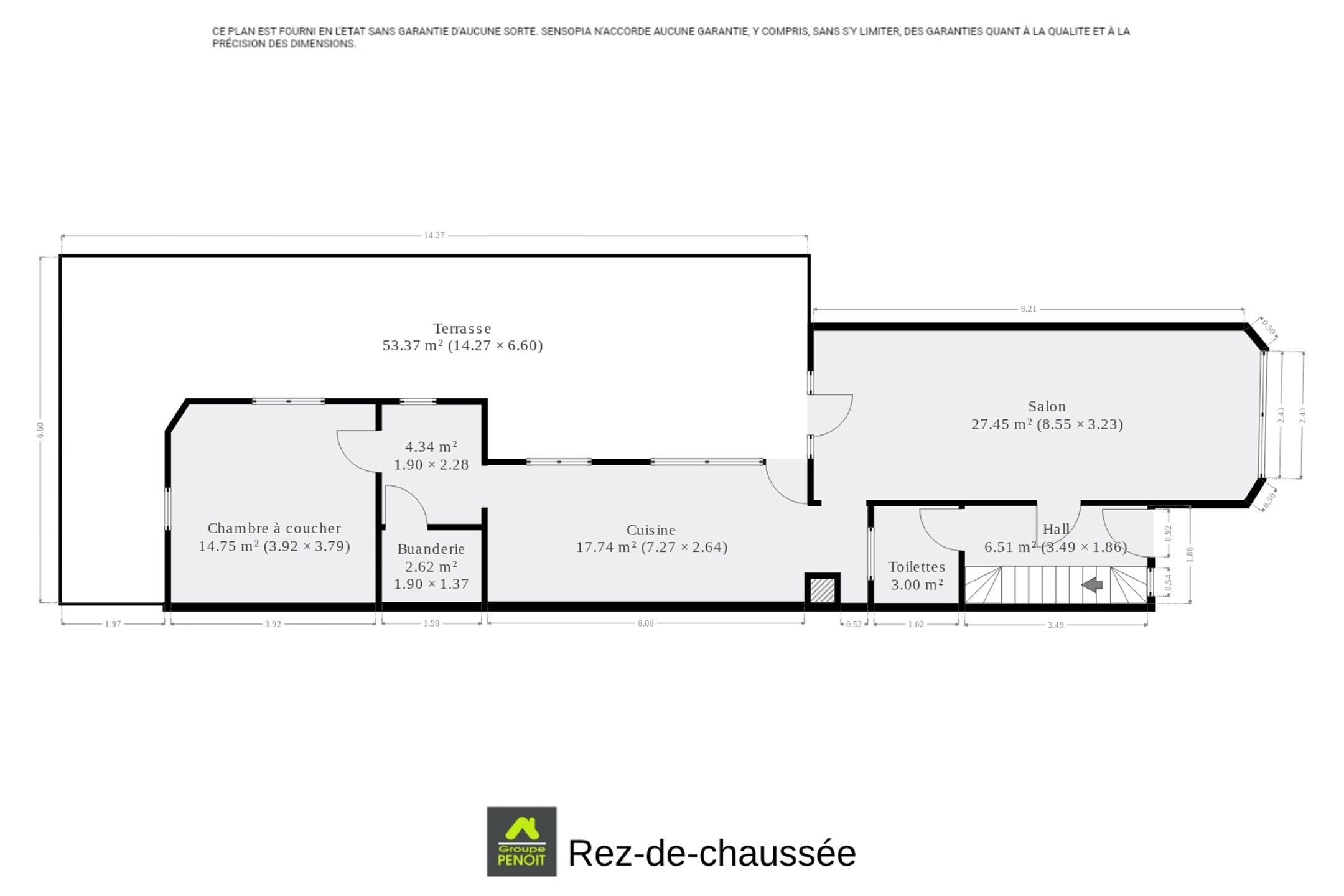
Le groupe Penoit à le plaisir de vous proposer cette charmante maison 4 chambres rénovée en 2021. Nichée sur les hauteurs de Seraing, cette maison offre un cadre de vie paisible dans une rue tranquille, tout en garantissant un quotidien facile grâce à la proximité des commodités de Seraing (écoles, commerces) et une mobilité professionnelle optimale vers les grands pôles d'emploi régionaux comme le CHU/Sart Tilman et Liège Airport. L'assurance d'un quotidien facile et de trajets optimisés. COMPOSITION : Rez-de-chaussée : Un hall d'entrée, un séjour confortable, une cuisine super équipée, une buanderie et une chambre. Au 1er étage : Un hall de nuit, deux chambres, une salle de bain et un espace bureau ou dressing. Au 2ème étage : Un vaste grenier à aménager selon vos envies. Possibilité d'en faire une suite parentale. La maison dispose également d'un espace de cave, d'une terrasse et d'un jardin de +/- 100m². TECHNIQUES : Electricité Conforme. Panneaux solaires (18). DV PVC (2021). CC Gaz à condensation. Citerne d'eau de pluie (10m³). PEB B (numéro unique : 20251021013447) avec un E Spec de 169kWh/m².an et un E Total de 29.295kWh/an. /!\ Le poêle à pellets ne reste pas!! Demande de renseignement et planification de visite par téléphone au 04/338.42.32 ou par mail à l’adresse immobilier@penoit.be. Documents téléchargeables sur www.penoit.be
Rue de l'Ecureuil 71 - 4100 Seraing
Référence | 7211631 |
---|---|
Catégorie | Maison |
Meublé | Non |
Nombre de chambres | 4 |
Nombre de salles de bain | 1 |
Jardin | Oui |
Surface du jardin | 100 m² |
Garage | Non |
Terrasse | Oui |
Parking | Non |
Surface habitable | 174 m² |
Surface du terrain | 293 m² |
Disponibilité | 01/03/2026 |
Année de construction | 1934 |
---|---|
Parking intérieur | Non |
Parking extérieur | Oui |
Nombre d'étages | 2 |
---|
Accès handicapés | Non |
---|---|
Cuisine | Oui |
Chauffage (ind/coll) (type (ind/coll)) | Chauffage mural |
Ascenseur | Non |
Double vitrage | Oui |
Chauffage (type) | gaz |
Type de cuisine | amer. super-équipée |
Sdb (type) | douche |
Orientation du bâtiment (façade arrière) | est |
---|---|
Type d'environnement | résidentiel |
Exposition de la façade avant | ouest |
Risque d'inondation (type innondation) | pas situé en zone inondable |
Nbre de toilette(s) (nombre) | 2 |
---|---|
Chambre 1 (surface) | 14 m² |
Chambre 2 (surface) | 12 m² |
Chambre 3 (surface) | 12 m² |
Chambre 4 (surface) | 35 m² |
Nbre de terrasse(s) (nombre) | 1 |
Salle de séjour (surface) | 27 m² |
Cuisine (surface) | 17 m² |
Salle de bain 1 (surface) | 5 m² |
Orientation de la terrasse 1 | est |
Magasins (distance (m)) | 350 |
---|---|
Écoles (distance (m)) | 450 |
Transports en commun (distance (m)) | 500 |
Centre sportif (distance (m)) | 1600 |
Magasins | Oui |
Ecoles | Oui |
Transports en commun | Oui |
Centre sportif | Oui |
Autoroute | Oui |
Autoroute (distance (m)) | 5500 |
Précompte immobilier (montant) | 624 € |
---|
Piscine | Non |
---|---|
Citerne d'eau | Oui |
Sous régime TVA | Non |
---|
Égouts | Oui |
---|---|
Électricité | Oui |
Gaz | Oui |
Câbles téléphoniques | Oui |
Eau | Oui |
Châssis (type) | pvc |
---|
Certificat d'électricité (oui/non) | oui, conforme |
---|
Label PEB (classe) | B |
---|---|
PEB E-SPEC (kwh/m²/an) | 169 |
Emission CO2 (émission CO2) | 28 |
E total (Kwh/an) | 29295 |
PEB code unique | 20251021013447 |
PEB valide jusqu'au (datetime) | 21/10/2035 |
Date du PEB (datetime) | 21/10/2025 |
Visite disponibilité | Plages horaires hebdomadaires |
---|