
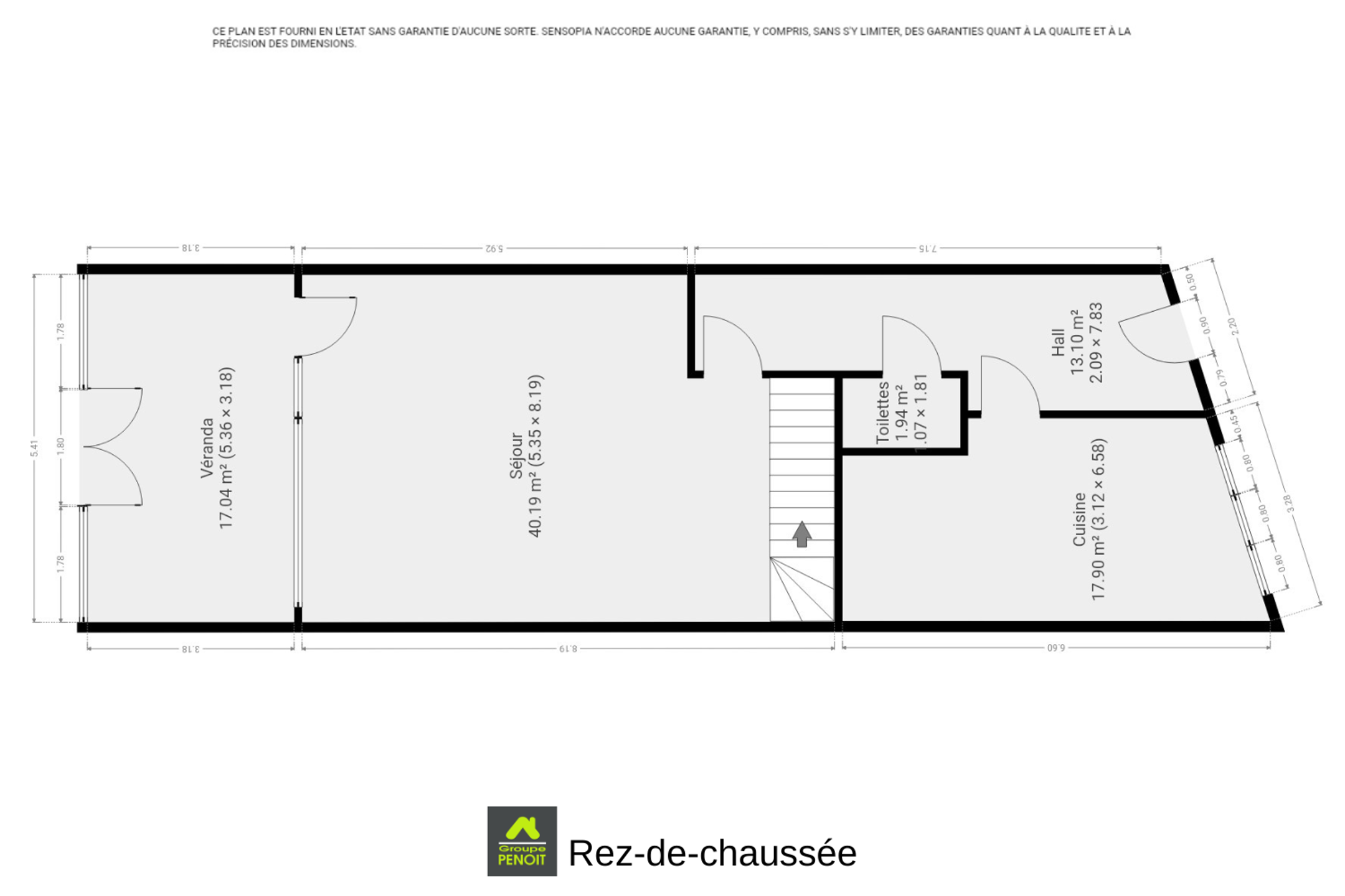
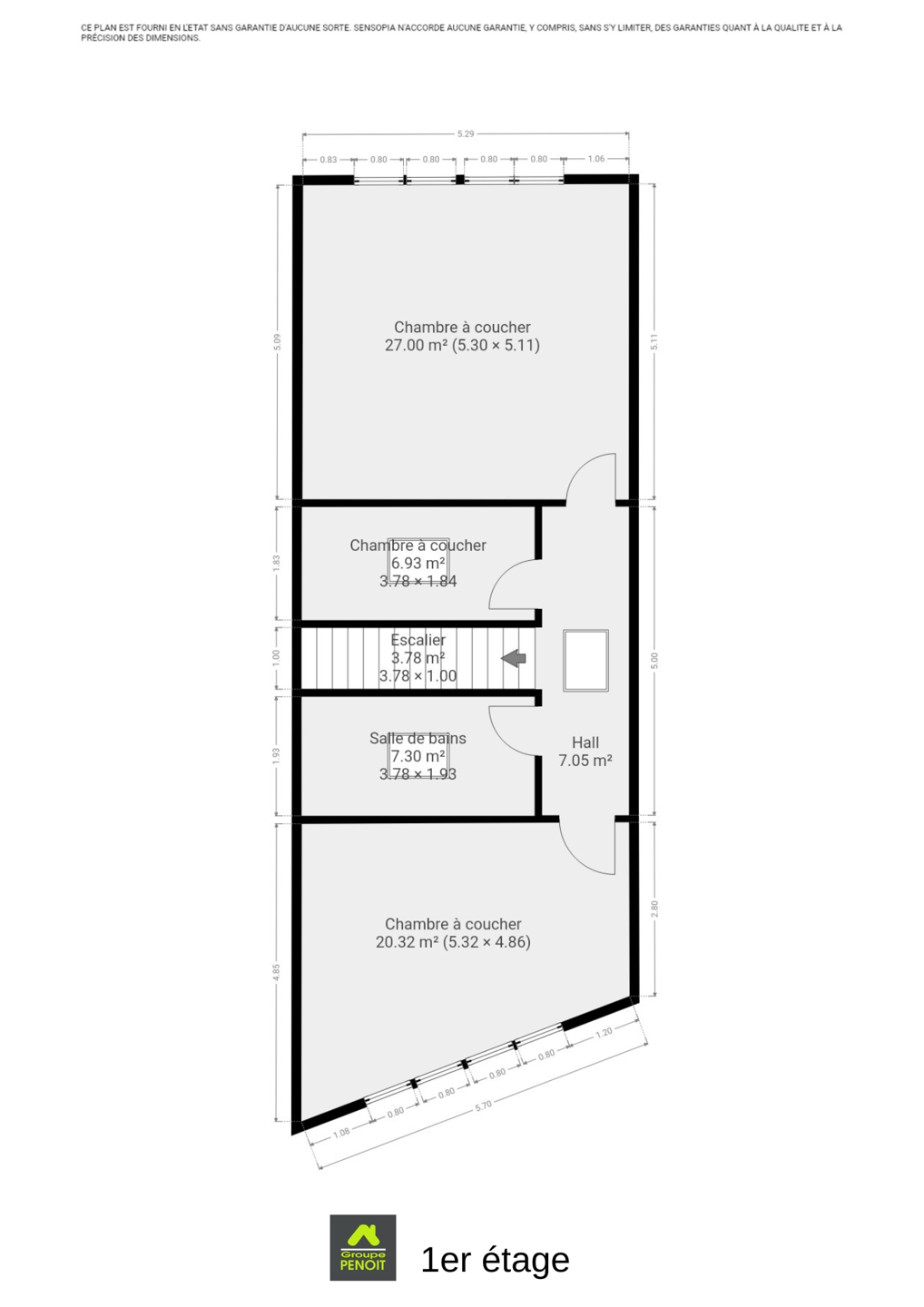
À découvrir sans tarder ! Cette maison incroyable entièrement rénovée est parfaite pour une famille en quête de confort. Le rez-de-chaussée s’ouvre sur un hall d’entrée qui mène à une cuisine entièrement équipée de 18m², ainsi qu’à un vaste séjour lumineux de 40m². Une première toilette indépendante vient compléter ce niveau. À l’étage, l’espace nuit se compose de trois chambres : une première de 27m² une seconde de 20m², et une troisième de 7m², offrant à chacun son espace de confort et d’intimité. Une salle de bain avec baignoire et toilette complète cet étage. À l’arrière de la maison, une belle véranda lumineuse de 17m² vous attend : un véritable espace de transition vers l’extérieur, idéal comme coin détente ou salle de jeux. Celle-ci donne accès à une agréable terrasse de 10m² et à un jardin spacieux et intime de 446m², parfait pour profiter des beaux jours en toute tranquillité. Le bien comprend également une cave de 22m², idéale pour le rangement, ainsi qu’une buanderie. Performance énergétique : PEB B (numéro unique : 2025060514919) avec un E Spec de 159 kWh/m².an et un E Total de 29 239 kWh/an. Ne manquez pas cette opportunité ! Pour plus d’informations et organiser une visite, contactez-nous au 04/338.42.32 ou rendez-vous sur www.penoit.be.
Rue de la Baume 253 - 4100 Seraing
Référence | 7016768 |
---|---|
Catégorie | Maison |
Meublé | Non |
Nombre de chambres | 3 |
Nombre de salles de bain | 1 |
Jardin | Oui |
Surface du jardin | 446 m² |
Garage | Non |
Terrasse | Oui |
Parking | Non |
Surface habitable | 184 m² |
Surface du terrain | 622 m² |
Disponibilité | 01/10/2025 |
Année de construction | 1950 |
---|---|
Nombre de garage | 0 |
Parking intérieur | Non |
Parking extérieur | Non |
Parking(s) intérieur (nombre) | 0 |
Parking(s) extérieur (nombre) | 0 |
Nombre d'étages | 1 |
---|
Accès handicapés | Non |
---|---|
Cuisine | Oui |
Chauffage (ind/coll) (type (ind/coll)) | Chauffage mural |
Ascenseur | Non |
Double vitrage | Oui |
Chauffage (type) | mazout (chauf. centr.) |
Type de cuisine | équipée |
Sdb (type) | douche dans le bain |
Double vitrage (type) | isol. thermique et acoustique |
Buanderie | Oui |
---|---|
Véranda | Oui |
Cave | Oui |
Nbre de toilette(s) (nombre) | 2 |
---|---|
Chambre 1 (surface) | 27 m² |
Chambre 2 (surface) | 7 m² |
Chambre 3 (surface) | 20 m² |
Nbre de terrasse(s) (nombre) | 1 |
Salle de séjour (surface) | 40 m² |
Cuisine (surface) | 18 m² |
Salle de bain 1 (surface) | 7 m² |
Volets | Oui |
---|
Piscine | Non |
---|
Sous régime TVA | Non |
---|
Égouts | Oui |
---|---|
Électricité | Oui |
Châssis (type) | pvc |
---|
Type d'environnement | central |
---|---|
Risque d'inondation (type innondation) | pas situé en zone inondable |
Surface de terrasse 1 | 10 m² |
---|
Type de revêtement de sol | carrelages |
---|
Magasins | Oui |
---|---|
Ecoles | Oui |
Transports en commun | Oui |
Centre sportif | Oui |
Autoroute | Oui |
Certificat d'électricité (oui/non) | oui, conforme |
---|
Label PEB (classe) | B |
---|---|
PEB E-SPEC (kwh/m²/an) | 159 |
Emission CO2 (émission CO2) | 39 |
E total (Kwh/an) | 29239 |
PEB code unique | 2025060514919 |