
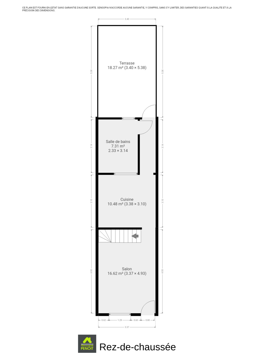
Ne manquez pas cette belle opportunité ! Située dans la ville de Seraing, cette charmante maison se distingue par sa configuration bien pensée et ses volumes agréables. Dès l’entrée, vous serez séduit par le rez-de-chaussée, qui vous accueille avec un séjour lumineux de 17m², parfait pour créer un espace salon confortable et chaleureux. Attenante à cette pièce, une cuisine moderne de 10m², entièrement équipée. Toujours à ce niveau, une salle de bain de 7m², comprenant une toilette, vient compléter l’ensemble avec praticité. L’espace nuit est réparti sur deux étages. Au premier étage se trouve une première chambre spacieuse de 17m², offrant de nombreuses possibilités d’aménagement. Au deuxième étage, une seconde chambre, également de 17m². À l’extérieur, vous pourrez profiter pleinement d’une terrasse de 18m², un espace agréable pour se détendre. Enfin, une cave de 13m² vient compléter le bien : idéale pour le stockage. Cette maison offre un excellent potentiel et saura répondre à de nombreux projets de vie. PEB D (numéro unique : 20240402002980 ) avec un E Spec de 338 kWh/m².an et un E Total de 29 454 kWh/an. Ne manquez pas cette opportunité ! Pour plus d’informations et organiser une visite, contactez-nous au 04/338.42.32 ou rendez-vous sur www.penoit.be.
Rue du Dépôt 17 - 4100 Seraing
Référence | 6991652 |
---|---|
Catégorie | Maison |
Meublé | Non |
Nombre de chambres | 2 |
Nombre de salles de bain | 1 |
Garage | Non |
Terrasse | Oui |
Parking | Non |
Surface habitable | 87 m² |
Surface du terrain | 64 m² |
Disponibilité | immédiatement |
Année de construction | 1945 |
---|---|
Parking intérieur | Non |
Parking extérieur | Non |
Nombre d'étages | 2 |
---|
Accès handicapés | Non |
---|---|
Cuisine | Oui |
Chauffage (ind/coll) (type (ind/coll)) | Chauffage mural |
Ascenseur | Non |
Double vitrage | Oui |
Chauffage (type) | gaz (chau. centr.) |
Type de cuisine | équipée |
Sdb (type) | douche |
Double vitrage (type) | isol. thermique et acoustique |
Nbre de toilette(s) (nombre) | 1 |
---|---|
Chambre 1 (surface) | 17 m² |
Chambre 2 (surface) | 17 m² |
Salle de séjour (surface) | 17 m² |
Cuisine (surface) | 10 m² |
Salle de bain 1 (surface) | 7 m² |
Piscine | Non |
---|
Sous régime TVA | Non |
---|
Châssis (type) | pvc |
---|
Type d'environnement | central |
---|---|
Type d'environnement 2 | central |
Risque d'inondation (type innondation) | pas situé en zone inondable |
Surface de terrasse 1 | 18 m² |
---|
Certificat d'électricité (oui/non) | oui, conforme |
---|
Grenier | Oui |
---|
Label PEB (classe) | D |
---|---|
PEB E-SPEC (kwh/m²/an) | 338 |
Emission CO2 (émission CO2) | 62 |
E total (Kwh/an) | 29454 |
PEB code unique | 20240402002980 |