
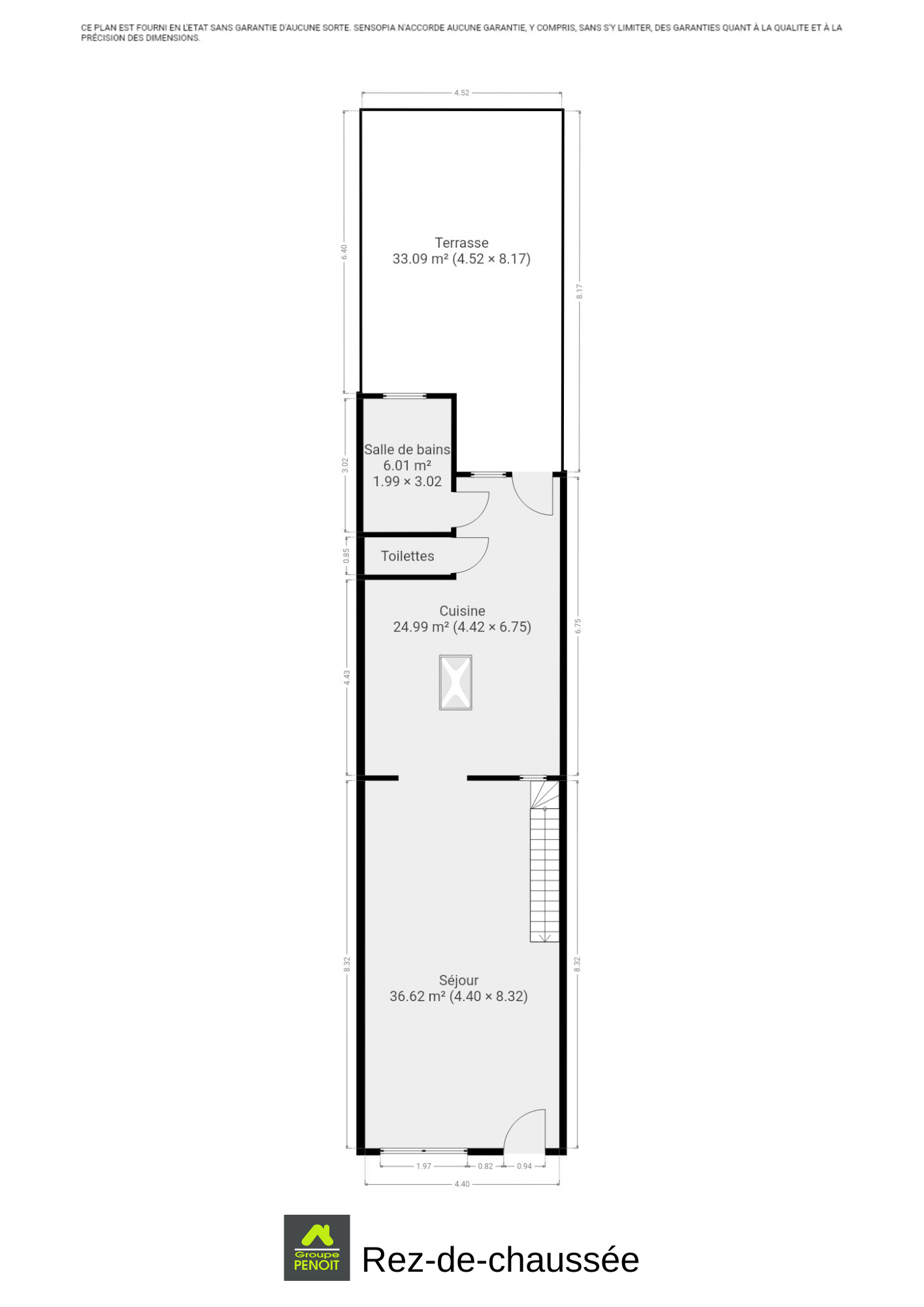
À visiter sans plus attendre ! Située à Seraing, cette charmante maison entièrement rénovée est idéale pour une famille en quête de confort, de fonctionnalité et de convivialité. Dès l’entrée, le rez-de-chaussée vous accueille avec une belle pièce de vie lumineuse de 37m², offrant un cadre chaleureux et spacieux. Cette pièce s’ouvre sur une cuisine moderne et entièrement équipée de 25m². Ce niveau comprend également une salle de bain de 6m², équipée à la fois d’une douche et d’une baignoire d’angle, permettant de répondre à tous les besoins du quotidien. Une toilette indépendante vient compléter cet étage pour plus de praticité. À l’étage, l’espace nuit se compose de deux chambres confortables. La première, d’une surface de 11m², ainsi qu'une seconde, plus spacieuse avec ses 15m². À l’extérieur, de la maison, vous découvrirez une grande terrasse de 33m², dont une partie est couverte, permettant de profiter des beaux jours en toute saison. Ce bel espace extérieur est prolongé par un jardin intime de 25 m². Enfin, une cave de 14m² est également mise à disposition, parfaite pour stocker, organiser ou aménager un espace de rangement supplémentaire.. Performance énergétique : PEB C code unique 20250414020391 avec un E Spec de 235 kWh/m².an et un E Total de 27180kWh/an. Ne manquez pas cette opportunité ! Pour plus d’informations et organiser une visite, contactez-nous au 04/338.42.32 ou rendez-vous sur www.penoit.be.
Rue Hainchamps 106 - 4100 Seraing
Référence | 6863980 |
---|---|
Catégorie | Maison |
Meublé | Non |
Nombre de chambres | 2 |
Nombre de salles de bain | 1 |
Jardin | Oui |
Surface du jardin | 25 m² |
Garage | Non |
Terrasse | Oui |
Parking | Non |
Surface habitable | 116 m² |
Surface du terrain | 130 m² |
Disponibilité | 01/01/2026 |
Année de construction | 1950 |
---|---|
Parking intérieur | Non |
Parking extérieur | Non |
Parking(s) intérieur (nombre) | 0 |
Parking(s) extérieur (nombre) | 0 |
Nombre d'étages | 1 |
---|
Accès handicapés | Non |
---|---|
Cuisine | Oui |
Chauffage (ind/coll) (type (ind/coll)) | Chauffage mural |
Ascenseur | Non |
Double vitrage | Oui |
Chauffage (type) | gaz (chau. centr.) |
Type de cuisine | équipée |
Sdb (type) | douche et bain |
Double vitrage (type) | isol. thermique et acoustique |
Largeur front de rue | 5 |
---|---|
Surface bâtie (surf. bât. princ.) | 70 |
Nbre de toilette(s) (nombre) | 1 |
Chambre 1 (surface) | 11 m² |
Chambre 2 (surface) | 15 m² |
Largeur de façade | 5 |
Nbre de terrasse(s) (nombre) | 1 |
Salle de séjour (surface) | 37 m² |
Cuisine (surface) | 25 m² |
Salle de bain 1 (surface) | 6 m² |
Volets | Oui |
---|
Piscine | Non |
---|
Revenu cad. indexé (montant) | 485 € |
---|---|
Section | E |
Numéro (n°) | 0503TP0000 |
Surface (ha/a/ca) (surf. (ha/a/ca)) | 130 |
Revenu cadastral (€) (montant) | 485 € |
Sous régime TVA | Non |
---|
Égouts | Oui |
---|---|
Électricité | Oui |
Gaz | Oui |
Eau | Oui |
Châssis (type) | pvc |
---|
Type d'environnement | central |
---|---|
Type d'environnement 2 | central |
Risque d'inondation (type innondation) | pas situé en zone inondable |
Type de zone inondable | zone riveraine délimitée |
Surface de terrasse 1 | 33 m² |
---|
Type de revêtement de sol | carrelages |
---|
Magasins | Oui |
---|---|
Ecoles | Oui |
Transports en commun | Oui |
Centre sportif | Oui |
Autoroute | Oui |
Certificat d'électricité (oui/non) | oui, conforme |
---|
Cave | Oui |
---|
Label PEB (classe) | C |
---|---|
PEB E-SPEC (kwh/m²/an) | 235 |
Emission CO2 (émission CO2) | 43 |
E total (Kwh/an) | 27180 |
PEB code unique | 20250414020391 |
PEB valide jusqu'au (datetime) | 14/04/2035 |
Date du PEB (datetime) | 14/04/2025 |
Visite disponibilité | Plages horaires hebdomadaires |
---|