
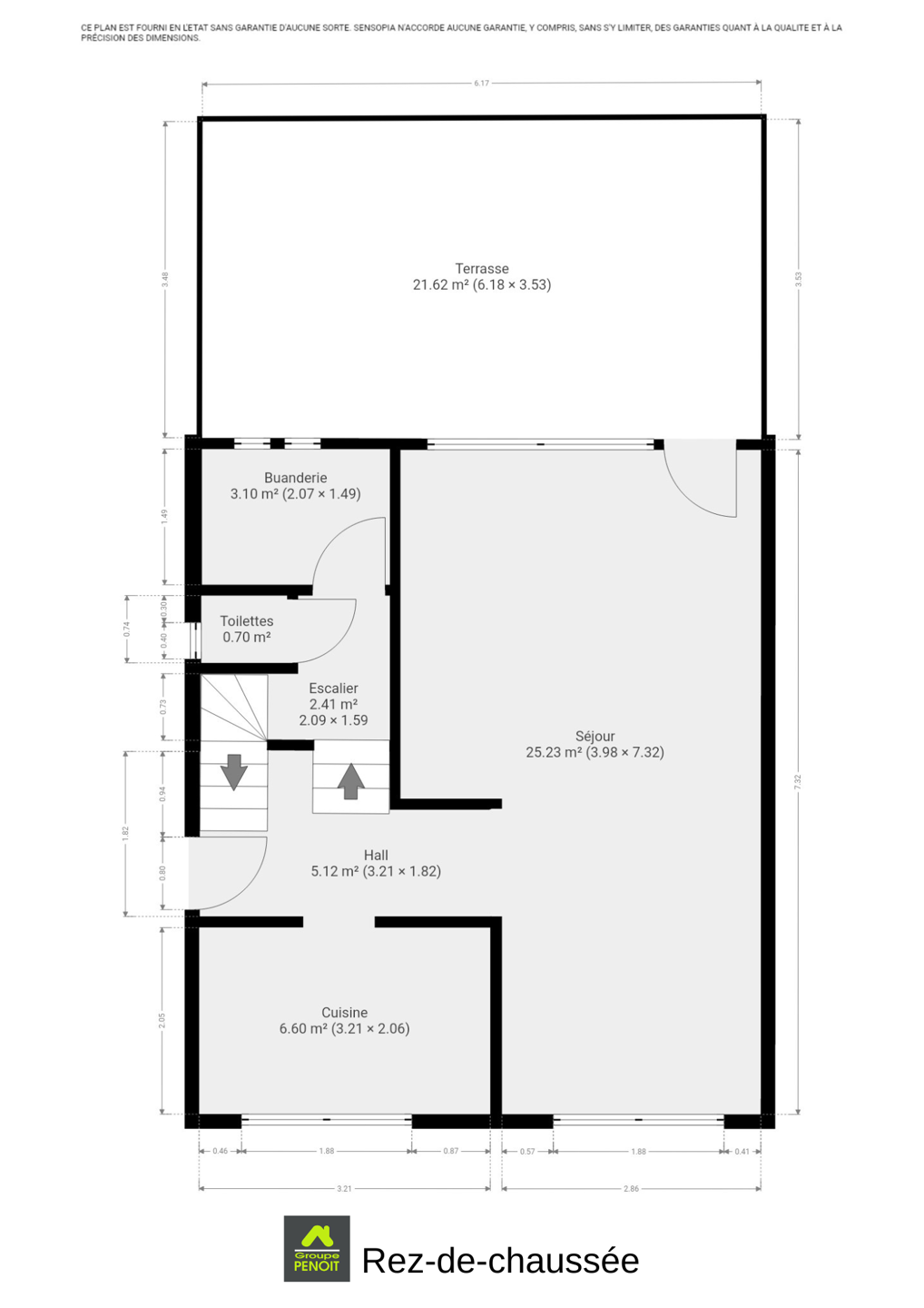
Venez découvrir cette charmante maison entièrement rénovée en 2019. Le rez-de-chaussée vous accueille avec un espace salon prolongé par une salle à manger de 25m², jouxtant la cuisine équipée. A l'entre sol vous trouverez, une toilette indépendante ce qui offre un véritable confort au quotidien ainsi qu'une petite buanderie, qui peut selon le besoin reprendre sa fonction de salle de douche. Au premier étage totalement revêtu d'un superbe parquet, le hall de nuit distribue deux chambres (9 et 16 m²) et une salle de bain avec baignoire/douche. En cas de besoin, cette dernière pièce peut redevenir la 3ieme chambre d'origine sans trop d'efforts. La maison dispose de châssis double vitrage en bois. Superficie habitable de 102m² + un grand garage de 25m² avec porte électrique. A l'extérieur vous trouvez une grande terrasse en gravier d'environs 22m² et l'espace jardin qui occupe le coté de la maison. Installation électrique conforme! Nouvelle installation de chauffage gaz avec chaudière Vaillant!. Le bien dispose également d'un petit grenier de rangement, ainsi qu'une citerne d'eau de pluie raccordée au garage. PEB D ( numéro unique: 20240916002580) avec un E spec de 307kWh/m².an et un E total de 31 277kWh/an. N'attendez plus pour la découvrir! Infos et visites au 04/338.42.32, ou retrouvez toutes les informations sur www.penoit.be.
Rue des Areines 1 - 4100 Seraing
Référence | 6804643 |
---|---|
Catégorie | Maison |
Meublé | Non |
Nombre de chambres | 2 |
Nombre de salles de bain | 1 |
Jardin | Oui |
Surface du jardin | 150 m² |
Garage | Oui |
Terrasse | Oui |
Parking | Oui |
Surface habitable | 102 m² |
Surface du terrain | 230 m² |
Disponibilité | 01/10/2025 |
Année de construction | 1950 |
---|---|
Nombre de garage | 1 |
Parking intérieur | Oui |
Parking extérieur | Oui |
Année de rénovation | 2019 |
Parking(s) intérieur (nombre) | 1 |
Parking(s) extérieur (nombre) | 1 |
Type de toit | en pente |
Nombre d'étages | 2 |
---|
Accès handicapés | Non |
---|---|
Cuisine | Oui |
Chauffage (ind/coll) (type (ind/coll)) | Chauffage mural |
Ascenseur | Non |
Chauffage (type) | gaz (chau. centr.) |
Type de cuisine | équipée |
Sdb (type) | douche dans le bain |
Double vitrage (type) | isol. thermique et acoustique |
Largeur front de rue | 15 |
---|---|
Surface bâtie (surf. bât. princ.) | 72 |
Nbre de toilette(s) (nombre) | 1 |
Chambre 1 (surface) | 16 m² |
Chambre 2 (surface) | 9 m² |
Largeur de façade | 7 |
Nbre de terrasse(s) (nombre) | 1 |
Buanderie | Oui |
---|---|
Grenier | Oui |
Piscine | Non |
---|---|
Citerne d'eau | Oui |
Revenu cad. indexé (montant) | 609 € |
---|---|
Numéro (n°) | D314p7 |
Revenu cadastral (€) (montant) | 609 € |
Sous régime TVA | Non |
---|---|
Loué | Non |
Servitude | Non |
---|---|
Jugement en cours | Non |
Permis de bâtir | Non |
Permis de lotir | Non |
Destination bâtiment (type) | privé - unifamilial |
Droit de préemption | Non |
Affectation urbanistique | zone d'habitat |
Intimation en justice | Non |
Égouts | Oui |
---|---|
Électricité | Oui |
Télévision par cable | Oui |
Gaz | Oui |
Câbles téléphoniques | Oui |
Eau | Oui |
Châssis (type) | bois |
---|
Type d'environnement | calme |
---|---|
Risque d'inondation (type innondation) | pas situé en zone inondable |
Type de zone inondable | zone riveraine délimitée |
Surface de terrasse 1 | 22 m² |
---|
Type de revêtement de sol | carrelages |
---|
Magasins | Oui |
---|---|
Ecoles | Oui |
Transports en commun | Oui |
Centre sportif | Oui |
Certificat d'électricité (oui/non) | oui, conforme |
---|
Label PEB (classe) | D |
---|---|
PEB E-SPEC (kwh/m²/an) | 307 |
Emission CO2 (émission CO2) | 56 |
E total (Kwh/an) | 31277 |
PEB code unique | 20240916002580 |
PEB valide jusqu'au (datetime) | 16/09/2034 |
Date du PEB (datetime) | 16/09/2024 |
Date de l'estimation | 14/05/2025 |
---|