
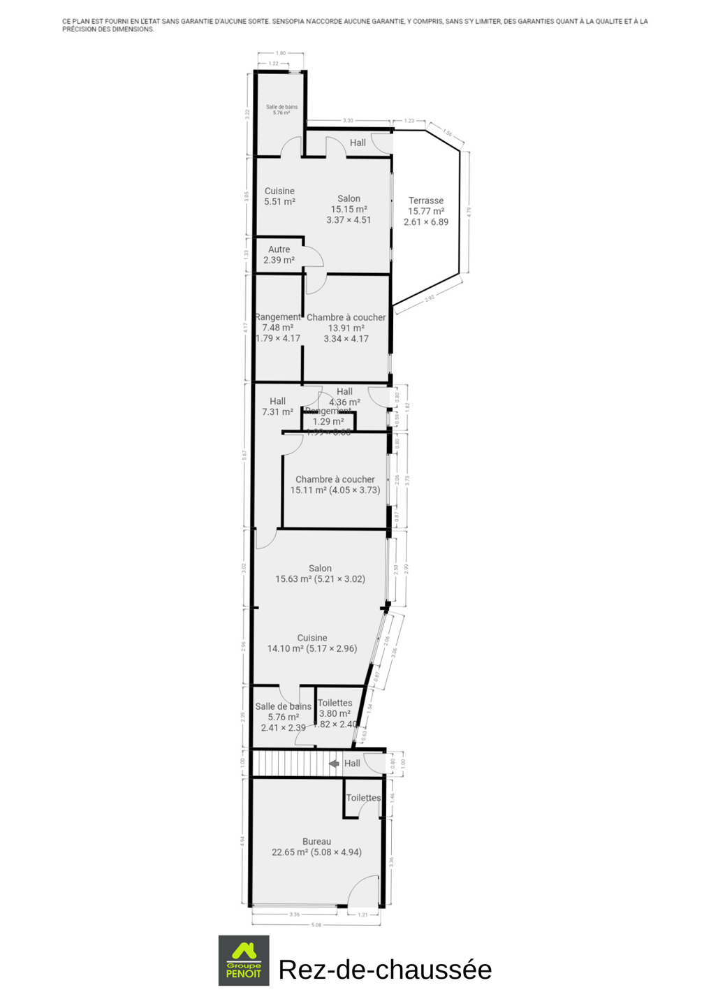
Ne manquez pas cette opportunité unique d’investissement située en plein cœur de Seraing. Ce lot immobilier représente une occasion pour les investisseurs à la recherche d’un bien polyvalent. Implanté sur un terrain de 2.817 m², l’ensemble se compose de trois appartements d’une chambre, tous actuellement loués. Chaque unité, d’une superficie de quatre pièces, comprend un séjour lumineux, une cuisine équipée, une chambre confortable ainsi qu’une salle de bain moderne. Ces logements sont en ordre au niveau urbanistique et disposent de compteurs individuels, le gaz et l’électricité, sont conformes aux normes en vigueur. Les fenêtres en PVC double vitrage assurent une excellente isolation thermique et acoustique. Le lot comprend également une surface commerciale située en façade, également louée, offrant une visibilité directe sur rue et générant un revenu locatif supplémentaire. Dix garages individuels complètent le bien. Revenu locatif de 1900€. Ce type de bien, regroupant du résidentiel, du commercial et du stationnement, offre une diversification locative intéressante. PEB : D - Numéro unique : 20170111013581 - D Numéro unique : 20170111013674 - C Numéro unique : 20170111013874. Infos et visites au 04/338.42.32, ou retrouvez toutes les informations sur www.penoit.be.
Rue de la Baume 264 - 266 - 4100 Seraing
Référence | 6785025 |
---|---|
Catégorie | Immeuble à appartements |
Meublé | Non |
Nombre de chambres | 3 |
Nombre de salles de bain | 3 |
Garage | Oui |
Terrasse | Oui |
Parking | Oui |
Surface habitable | 252 m² |
Surface du terrain | 2817 m² |
Disponibilité | 01/08/2025 |
Année de construction | 1946 |
---|---|
Nombre de garage | 10 |
Parking intérieur | Oui |
Parking extérieur | Oui |
Nombre d'étages | 1 |
---|
Accès handicapés | Non |
---|---|
Cuisine | Oui |
Ascenseur | Non |
Double vitrage | Oui |
Chauffage (type) | Chauffage mural |
Type de cuisine | équipée |
Double vitrage (type) | isol. thermique et acoustique |
Largeur front de rue | 5 |
---|---|
Surface bâtie (surf. bât. princ.) | 145 |
Surface de terrasse 2 | 2 m² |
Nbre de toilette(s) (nombre) | 4 |
Chambre 1 (surface) | 15 m² |
Chambre 2 (surface) | 14 m² |
Chambre 3 (surface) | 11 m² |
Largeur de façade | 5 |
Nbre de terrasse(s) (nombre) | 2 |
Bureau | Oui |
---|
Piscine | Non |
---|
Sous régime TVA | Non |
---|---|
Loué | Oui |
Égouts | Oui |
---|---|
Électricité | Oui |
Eau | Oui |
Châssis (type) | pvc |
---|
Type d'environnement | central |
---|---|
Risque d'inondation (type innondation) | pas situé en zone inondable |
Type de zone inondable | zone riveraine délimitée |
Surface de terrasse 1 | 16 m² |
---|
Type de revêtement de sol | carrelages |
---|
Magasins | Oui |
---|---|
Ecoles | Oui |
Transports en commun | Oui |
Centre sportif | Oui |
Autoroute | Oui |
Certificat d'électricité (oui/non) | oui, conforme |
---|
Label PEB (classe) | C |
---|---|
PEB E-SPEC (kwh/m²/an) | 232 |
Emission CO2 (émission CO2) | 43 |
E total (Kwh/an) | 15335 |
PEB code unique | 20170111013874 |