
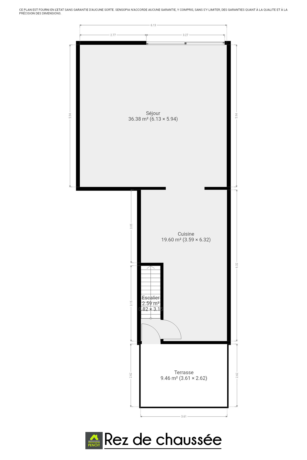
Située dans un quartier résidentiel de Seraing-Haut, cette charmante maison trois façades vous offre un cadre de vie agréable. Au rez-de-chaussée, vous trouverez un séjour de 37 m², une cuisine de 20 m². L’espace nuit se compose de deux chambres de 15 m² et 13 m², d'une salle de bain de 8 m² et d'un dressing de 7 m². La maison dispose également d’un sous-sol de 45 m² avec buanderie et accès au garage, offrant ainsi un espace de stockage supplémentaire. À l’extérieur, vous pourrez profiter d’une terrasse de 30 m², idéale pour vos moments de détente, ainsi que d’un jardin de 90 m². Indice PEB : C. Numéro unique : 20250131024439. E-Spec : 249 kWh/m²/an. E-Total : 29 793 kWh/an. N’hésitez plus et venez découvrir cette maison ! Possibilité de bénéficier des frais d’enregistrement à 3 % (conditions en agence). Infos et visites : 04/338.42.32. Disponible également sur www.penoit.be.
Rue de l'Aviation 72 - 4100 Seraing
Référence | 6554460 |
---|---|
Catégorie | Maison |
Meublé | Non |
Nombre de chambres | 2 |
Nombre de salles de bain | 1 |
Jardin | Oui |
Surface du jardin | 90 m² |
Garage | Oui |
Terrasse | Oui |
Parking | Oui |
Surface habitable | 119 m² |
Surface du terrain | 225 m² |
Disponibilité | à convenir |
Année de construction | 1925 |
---|---|
Nombre de garage | 1 |
Parking intérieur | Non |
Parking extérieur | Oui |
Parking(s) intérieur (nombre) | 1 |
Parking(s) extérieur (nombre) | 1 |
Type de toit | en pente |
Nombre d'étages | 1 |
---|
Accès handicapés | Non |
---|---|
Cuisine | Oui |
Chauffage (ind/coll) (type (ind/coll)) | Chauffage mural |
Ascenseur | Non |
Double vitrage | Oui |
Chauffage (type) | gaz |
Type de cuisine | équipée |
Sdb (type) | douche dans le bain |
Double vitrage (type) | isol. thermique et acoustique |
Buanderie | Oui |
---|---|
Grenier | Oui |
Nbre de toilette(s) (nombre) | 1 |
---|---|
Chambre 1 (surface) | 15 m² |
Chambre 2 (surface) | 13 m² |
Salle de séjour (surface) | 36 m² |
Cuisine (surface) | 20 m² |
Salle de bain 1 (surface) | 8 m² |
Piscine | Non |
---|
Sous régime TVA | Non |
---|
Égouts | Oui |
---|---|
Électricité | Oui |
Gaz | Oui |
Eau | Oui |
Châssis (type) | bois |
---|
Type d'environnement | calme |
---|---|
Risque d'inondation (type innondation) | pas situé en zone inondable |
Surface de terrasse 1 | 30 m² |
---|
Type de revêtement de sol | carrelages |
---|
Revenu cadastral (€) (montant) | 661 € |
---|
Magasins | Oui |
---|---|
Ecoles | Oui |
Transports en commun | Oui |
Centre sportif | Oui |
Autoroute | Oui |
Certificat d'électricité (oui/non) | oui, conforme |
---|
Label PEB (classe) | C |
---|---|
PEB E-SPEC (kwh/m²/an) | 249 |
Emission CO2 (émission CO2) | 39 |
E total (Kwh/an) | 29793 |
PEB code unique | 20250131024439 |
Visite disponibilité | Plages horaires hebdomadaires |
---|