
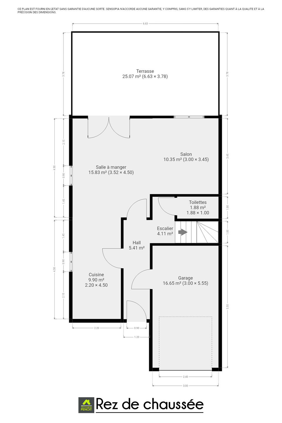
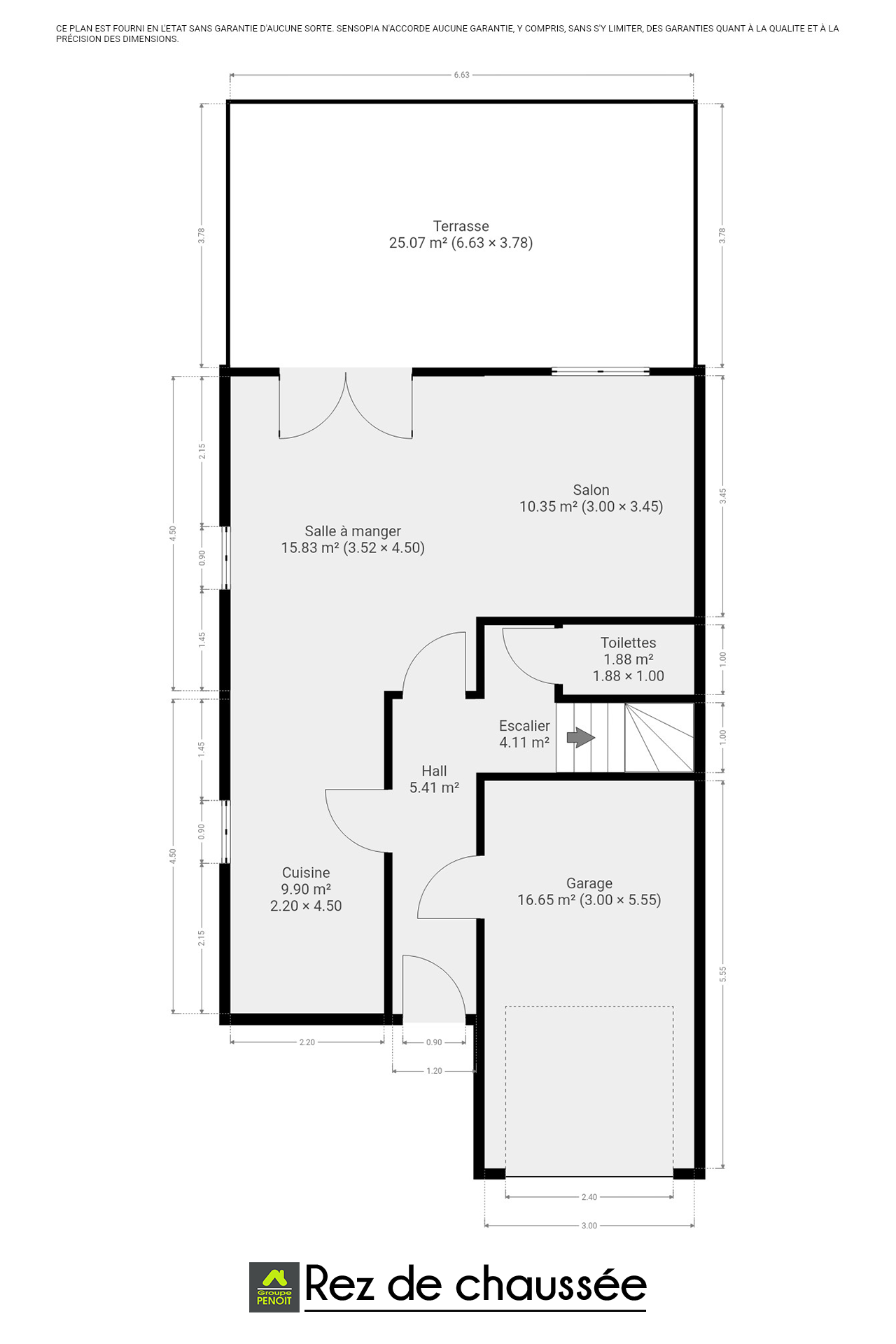
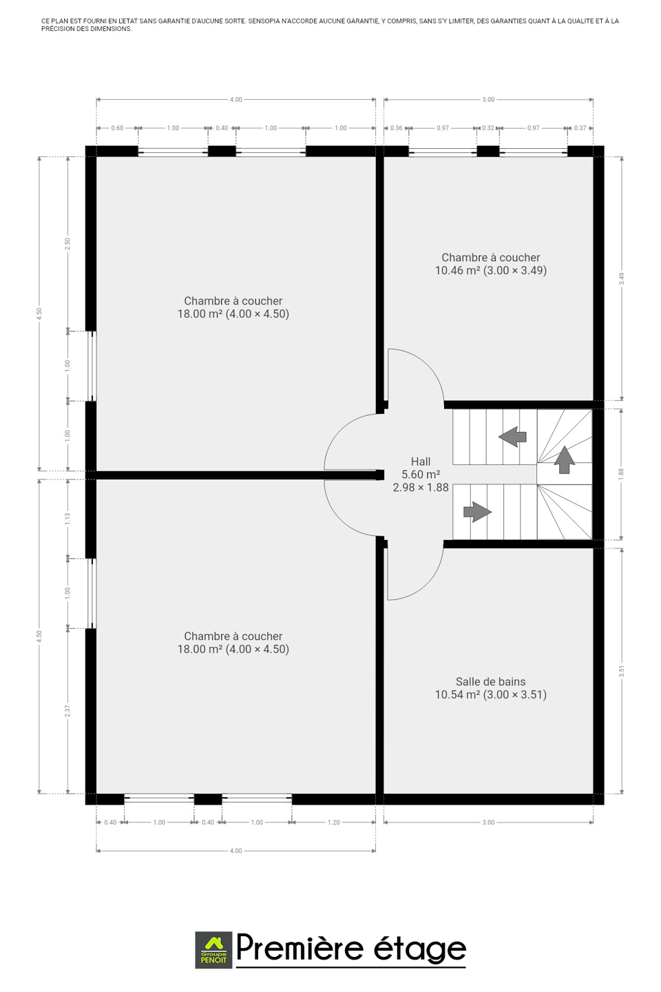
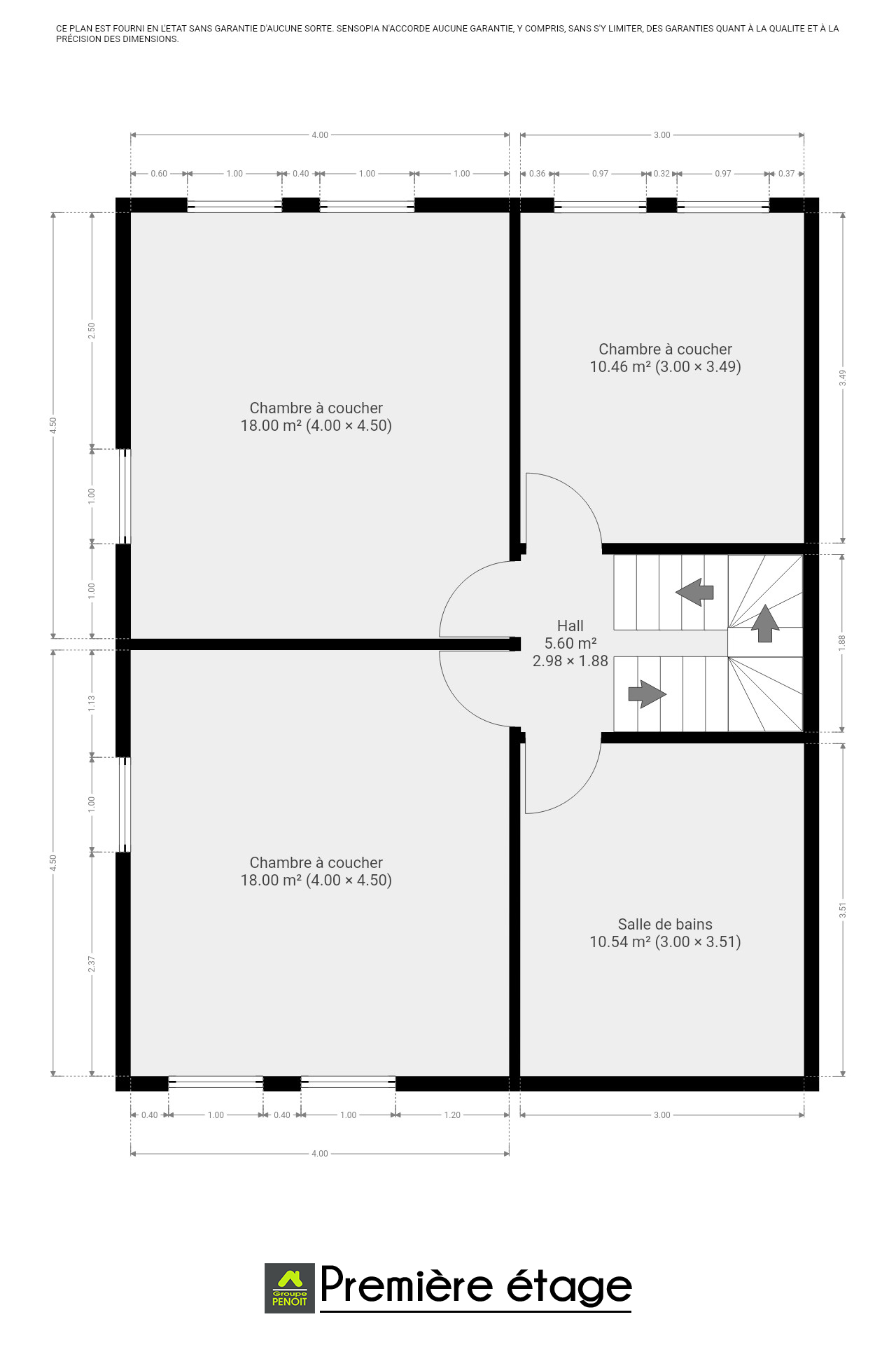
Située dans un quartier calme et non loin du bois de la Vecquée, cette charmante maison 3 façades vous offre un cadre de vie agréable. Au rez-de-chaussée, vous trouverez un séjour de 26 m², une cuisine de 10 m² ainsi qu’un WC séparé situé à l’entrée du hall. Au premier étage, l’espace nuit se compose de trois chambres de 18 m², 18 m² et 10 m², ainsi que d’une salle de bains de 10 m². La maison dispose également d’un grenier de 23 m² et d’un garage de 17 m², offrant un espace de stockage supplémentaire. À l’extérieur, vous pourrez profiter d’une terrasse de 25 m², idéale pour vos moments de détente. Le véritable atout de ce bien est son jardin de 350 m², directement en bordure d’une petite étendue boisée, offrant un cadre naturel unique pour se ressourcer. Indice PEB : C. Numéro Unique : 20250204002305. E-Spec : 241 kWh/m²/an. E-Total : 49 192 kWh/an. N’hésitez plus et venez découvrir cette maison ! Possibilité de bénéficier des frais d’enregistrement à 3 % (conditions en agence) ! Infos et visites : 04/338.42.32 | Disponible également sur www.penoit.be
Rue Lorraine 8 - 4100 Seraing
Référence | 6515530 |
---|---|
Catégorie | Maison |
Meublé | Non |
Nombre de chambres | 3 |
Nombre de salles de bain | 1 |
Jardin | Oui |
Surface du jardin | 350 m² |
Garage | Oui |
Terrasse | Oui |
Parking | Oui |
Surface habitable | 204 m² |
Surface du terrain | 614 m² |
Disponibilité | à convenir |
Année de construction | 2005 |
---|---|
Nombre de garage | 1 |
Parking(s) intérieur (nombre) | 1 |
Parking(s) extérieur (nombre) | 2 |
Type de toit | en pente |
Nombre d'étages | 1 |
---|
Accès handicapés | Non |
---|---|
Cuisine | Oui |
Chauffage (ind/coll) (type (ind/coll)) | Chauffage mural |
Ascenseur | Non |
Double vitrage | Oui |
Chauffage (type) | gaz (chau. centr.) |
Type de cuisine | équipée |
Double vitrage (type) | isol. thermique et acoustique |
Nbre de toilette(s) (nombre) | 2 |
---|---|
Chambre 1 (surface) | 18 m² |
Chambre 2 (surface) | 18 m² |
Chambre 3 (surface) | 10 m² |
Salle de séjour (surface) | 10 m² |
Salle à manger (surface) | 16 m² |
Cuisine (surface) | 10 m² |
Salle de bain 1 (surface) | 10 m² |
Piscine | Non |
---|
Sous régime TVA | Non |
---|
Égouts | Oui |
---|---|
Électricité | Oui |
Gaz | Oui |
Eau | Oui |
Châssis (type) | pvc |
---|
Type d'environnement | calme |
---|---|
Risque d'inondation (type innondation) | pas situé en zone inondable |
Surface de terrasse 1 | 25 m² |
---|
Type de revêtement de sol | carrelages |
---|
Revenu cadastral (€) (montant) | 991 € |
---|
Magasins | Oui |
---|---|
Ecoles | Oui |
Transports en commun | Oui |
Plage | Oui |
Centre sportif | Oui |
Autoroute | Oui |
Certificat d'électricité (oui/non) | oui, conforme |
---|
Grenier | Oui |
---|
Label PEB (classe) | C |
---|---|
PEB E-SPEC (kwh/m²/an) | 241 |
Emission CO2 (émission CO2) | 45 |
E total (Kwh/an) | 49192 |
PEB code unique | 20250204002305 |
PEB valide jusqu'au (datetime) | 04/02/2035 |
Date du PEB (datetime) | 04/02/2025 |
Visite disponibilité | Plages horaires hebdomadaires |
---|