
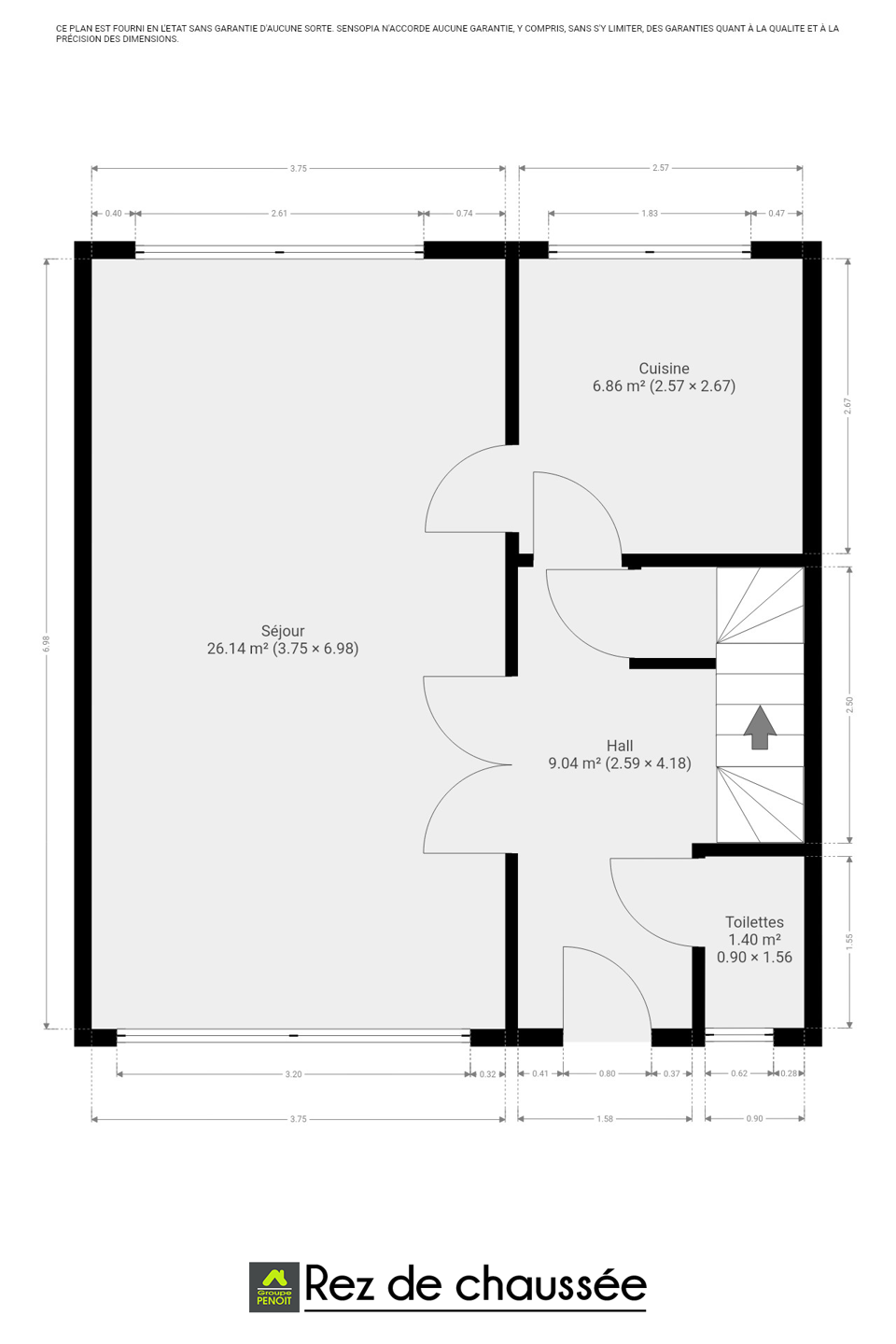
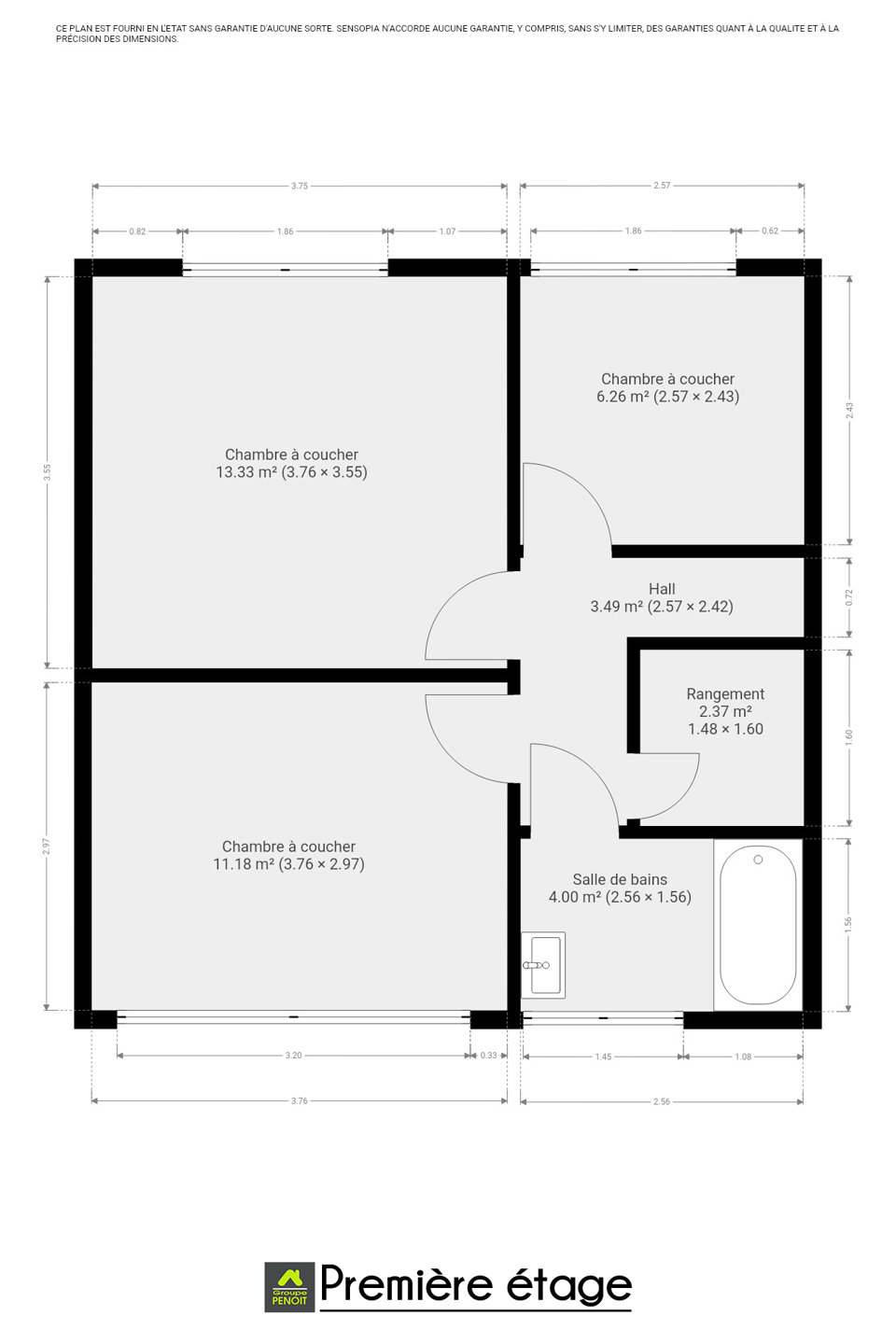
Située dans un quartier résidentiel calme et en bordure du bois du Val, cette charmante maison 3 façades vous offre un cadre de vie agréable. Au rez-de-chaussée, vous trouverez un séjour de 26 m², une cuisine de 7 m², ainsi qu'un WC séparé situé à l'entrée du hall. Au premier étage, l’espace nuit se compose de trois chambres de : 13 m², 11 m² et une de 6 m². La salle de bains de 4 m² et un espace de rangement de 1,40 m² viennent compléter cet étage. La maison dispose également d’une cave de 17 m² et d’un garage de 26 m², offrant un espace de stockage supplémentaire. À l’extérieur, vous pourrez profiter d’une terrasse de 55 m², idéale pour vos moments de détente, ainsi qu’un petit atelier de 3 m². Le véritable atout de ce bien est son jardin de 343 m², directement en bordure du bois du Val, offrant un cadre naturel unique pour se ressourcer. Indice PEB E . Numéro Unique : 20250114005972 E-Spec : 399 kWh/m²/an E-Total : 43 711 kWh/an N'hésitez plus et venez découvrir cette maison ! Possibilité de bénéficier des frais d'enregistrement à 3 % (conditions en agence) ! Infos et visites : 04/338.42.32 | Disponible également sur www.penoit.be
rue des marteleurs 36 - 4100 Seraing
Référence | 6440538 |
---|---|
Catégorie | Maison |
Meublé | Non |
Nombre de chambres | 3 |
Nombre de salles de bain | 1 |
Jardin | Oui |
Surface du jardin | 343 m² |
Garage | Oui |
Terrasse | Oui |
Parking | Oui |
Surface habitable | 109 m² |
Surface du terrain | 730 m² |
Disponibilité | 15/04/2025 |
Année de construction | 1976 |
---|---|
Nombre de garage | 1 |
Parking(s) intérieur (nombre) | 2 |
Parking(s) extérieur (nombre) | 1 |
Type de toit | en pente |
Nombre d'étages | 1 |
---|
Accès handicapés | Non |
---|---|
Cuisine | Oui |
Chauffage (ind/coll) (type (ind/coll)) | Chauffage mural |
Ascenseur | Non |
Double vitrage | Oui |
Chauffage (type) | mazout (chauf. centr.) |
Type de cuisine | non-équipée |
Sdb (type) | bain |
Double vitrage (type) | isol. thermique et acoustique |
Nbre de toilette(s) (nombre) | 1 |
---|---|
Chambre 1 (surface) | 13 m² |
Chambre 2 (surface) | 11 m² |
Chambre 3 (surface) | 6 m² |
Salle de séjour (surface) | 26 m² |
Cuisine (surface) | 7 m² |
Salle de bain 1 (surface) | 4 m² |
Volets | Oui |
---|---|
Volets (type) | Manuels |
Piscine | Non |
---|
Électricité | Oui |
---|---|
Eau | Oui |
Châssis (type) | pvc |
---|
Type d'environnement | boisé |
---|---|
Risque d'inondation (type innondation) | pas situé en zone inondable |
Surface de terrasse 1 | 55 m² |
---|
Type de revêtement de sol | carrelages |
---|
Magasins | Oui |
---|---|
Ecoles | Oui |
Transports en commun | Oui |
Centre sportif | Oui |
Autoroute | Oui |
Certificat d'électricité (oui/non) | oui, non conforme |
---|
Cave | Oui |
---|
Label PEB (classe) | E |
---|---|
PEB E-SPEC (kwh/m²/an) | 399 |
Emission CO2 (émission CO2) | 99 |
E total (Kwh/an) | 43711 |
PEB code unique | 20250114005972 |
PEB valide jusqu'au (datetime) | 13/01/2025 |
Date du PEB (datetime) | 13/01/2035 |