Maison - option v. - 4100 Seraing -

Maison - à vendre - 4100 Seraing
4 1 140 m² 1 PEB : D

Description

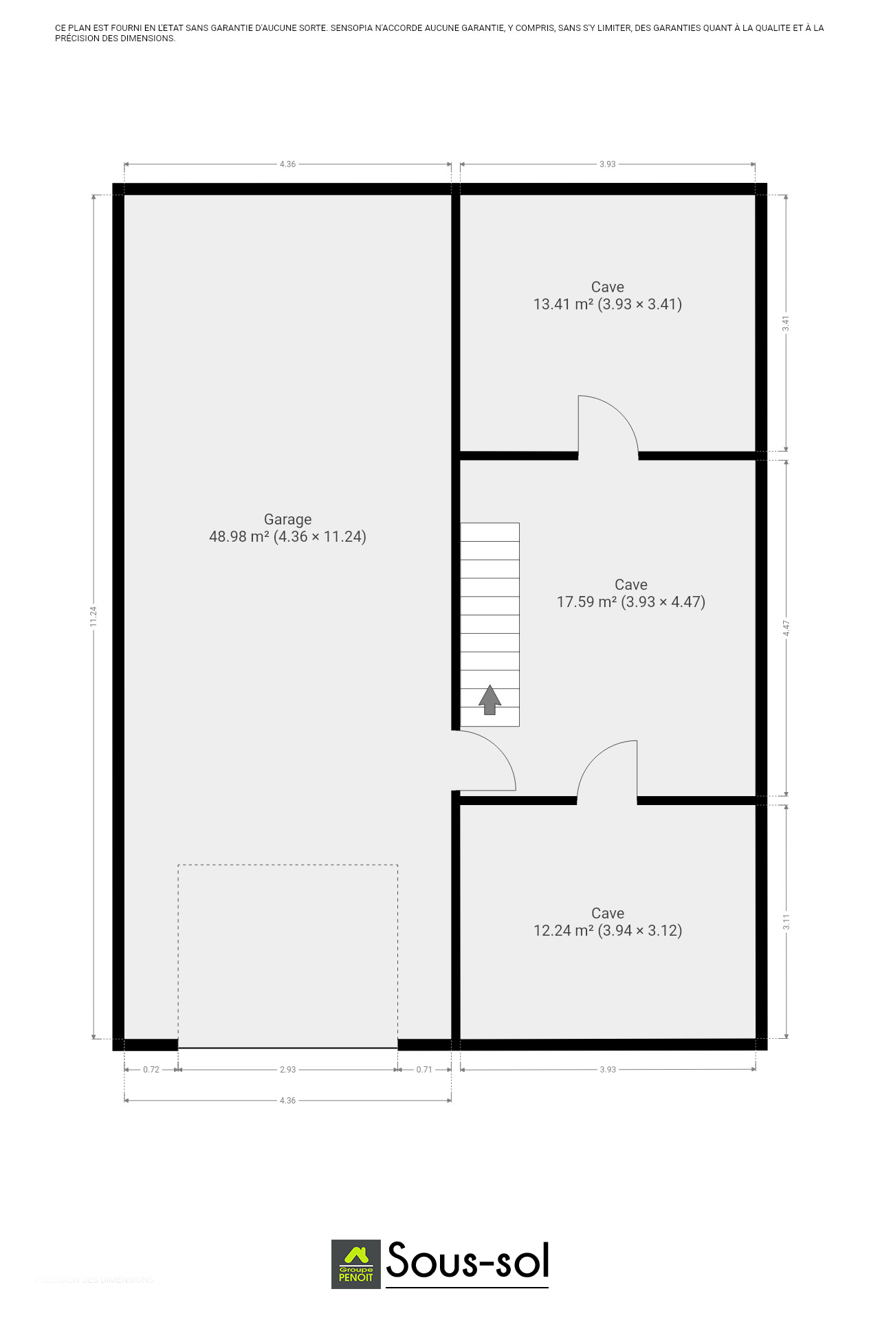
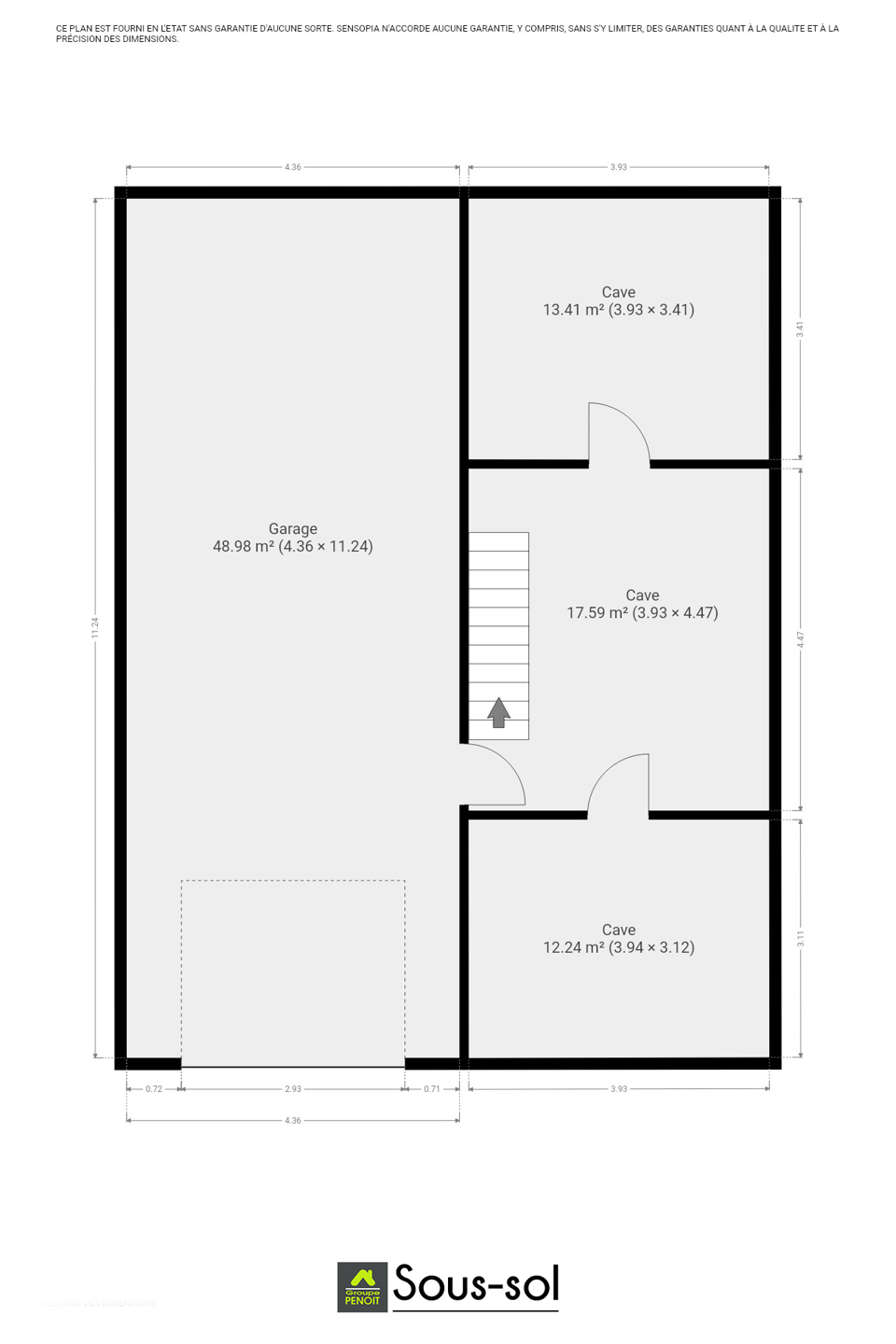
Cette belle maison unifamiliale à 4 façades, située dans un quartier résidentiel paisible en hauteur de Seraing, dispose de 4 chambres spacieuses. Le rez-de-chaussée se compose d'un vaste séjour de 44 m², d'une cuisine de 14 m² et d'un bureau de 12 m². À l'étage, vous découvrirez 4 chambres lumineuses de 20, 16, 14 et 13 m², ainsi qu'une salle de bain de 10 m² avec toilettes. La maison offre également un grand grenier de 60 m², avec une hauteur sous plafond généreuse, offrant la possibilité d'aménager cet espace en chambre ou bureau supplémentaire. Le sous-sol de 40 m², chauffé, constitue un agréable espace de rangement pour la famille. Un garage spacieux de 49 m² complète cette zone de cave. À l’extérieur, vous profiterez d’une terrasse de 31 m² et d'un jardin de 220 m², parfaits pour vos moments de détente. Ce bien dispose également d'un chauffage central au gaz de ville. Indice PEB D . Numéro Unique :20250107010472 E-Spec :258kWh/m²/an E-Total : 102 887kWh/an N'hésitez plus et venez découvrir cette maison ! Possibilité de bénéficier des frais d'enregistrement à 3 % (conditions en agence) ! Infos et visites : 04/338.42.32 | Soir et week-end : 0471/64.89.30 | Disponible également sur www.penoit.be

Adresse

rue Marconi 19 - 4100 Seraing

Documents

Général

Référence 6439902
Catégorie Maison
Meublé Non
Nombre de chambres 4
Nombre de salles de bain 1
Jardin Oui
Surface du jardin 230 m²
Garage Oui
Terrasse Oui
Surface habitable 140 m²
Surface du terrain 561 m²
Disponibilité 01/03/2025

Bâtiment

Année de construction 1970
Nombre de garage 1
Parking extérieur Oui
Type de toit en pente

Nom, catégorie & situation

Nombre d'étages (numéro) 1

Equipement de base

Accès handicapés Non
Cuisine Oui
Chauffage (ind/coll) (type (ind/coll)) Chauffage mural
Ascenseur Non
Double vitrage Oui
Chauffage (Format/energie) gaz
Type de cuisine équipée
Sdb (Type) douche et bain
Double vitrage (type) isol. thermique et acoustique

En chiffres

Nbre de toilette(s) (nombre) 2
Chambre 1 (surface) 20 m²
Chambre 2 (surface) 16 m²
Chambre 3 (surface) 14 m²
Chambre 4 (surface) 14 m²
Salle de séjour (surface) 44 m²
Cuisine (surface) 14 m²
Bureau (surface) 12 m²

Divers

Bureau Oui
Grenier Oui
Cave Oui

Sécurité

Volets Oui
Détails volets (type) manuels
Alarme Oui

Equipement extérieur

Piscine Non

Charges & Rendement

Sous régime TVA Non

Raccordements

Égouts Oui
Électricité Oui
Gaz Oui
Eau Oui

Équipements techniques

Châssis (Ouvertures) aluminium

Caractéristiques Principales

Surface de terrasse 1 31 m²

Spécificités terrain

Type d'environnement résidentiel
Risque d'inondation (type innondation) pas situé en zone inondable

Type de matériau & évaluation

Type de revêtement de sol carrelages

Cadastre

Revenu cadastral (€) (montant) 1497 €

À proximité

Magasins Oui
Ecoles Oui
Transports en commun Oui
Centre sportif Oui
Autoroute Oui

Certificats / Attestations

Certificat d'électricité (oui/non) oui, non conforme

Energie

Label PEB (Classe) D
PEB E-SPEC (kwh/m²/an) (Consommation énergétique) 258
Emission CO2 (Emission GES) 47
E total (Kwh/an) 102887
PEB code unique (-) 20250107010472
PEB valide jusqu'au (validité) 07/01/2025
Date du PEB 07/01/2035
Prendre contact pour le bien : 6439902

* Champs obligatoires

Préférences pour les cookies

La protection de vos données personnelles est importante pour nous. C’est pourquoi nous détaillons ci-dessous les différents services et fonctionnalités du site qui utilisent des cookies et nous vous laissons décider des cookies que vous souhaitez autoriser ou refuser.

Veuillez cependant noter que si vous bloquez certains types de cookies, cela pourrait impacter votre expérience de navigation sur notre site ainsi que les fonctionnalités disponibles.

Nous utilisons des cookies fonctionnels obligatoires pour assurer le bon fonctionnement du site. Ils sont, par exemple, nécessaires pour retrouver le résultat d’une recherche ou enregistrer le choix de la langue.

Certaines fonctionnalités, comme l’affichage de vidéos ou de cartes géographiques, sont assurées via des composants externes développés par des partenaires comme YouTube ou Google. Certains composants utilisent des cookies qui sont susceptibles de permettre à ces tiers de suivre le comportement des internautes afin, par exemple, de réaliser du ciblage publicitaire. L’activation de ces fonctionnalités et des cookies associés est donc soumis à votre consentement.