
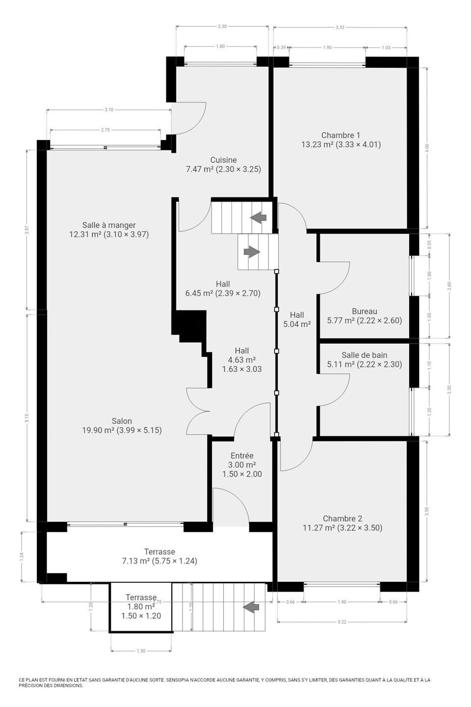
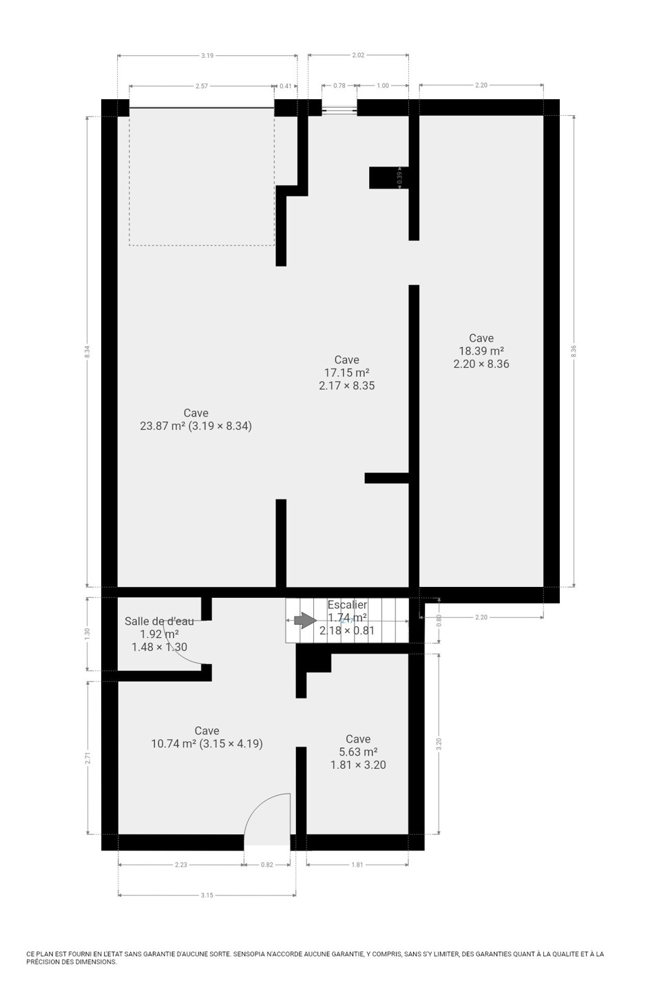
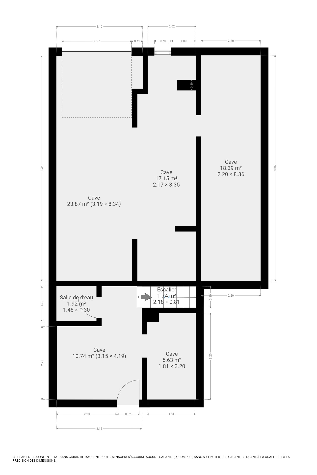
Magnifique maison 4 façades très bien entretenue avec 2 chambres + bureau, située à Seraing, datant de 1984. Au rez-de-chaussée; un hall d'entrée, un salon (20m²), une cuisine + une salle à manger (21m²), 2 chambres (13m² et 11,30m²), une salle de bain (5,10m²) et d'un bureau (6m²). Au premier étage ; un grand grenier avec de superbes possibilités d'aménagements pour des chambres supplémentaires (70m² !). La maison dispose d'une place de parking et d'un grand garage (24m²) accompagné d'un grand sous-sol (31m²), d'une buanderie (15m²) et d'une salle d'eau avec wc. Le bien à également une terrasse (52m²) et d'un jardin (465m²) orienter vers le sud. Chauffage central au gaz. Châssis double vitrage en bois. Revenu cadastral de (1083€) N'hésitez plus et venez la découvrir ! Possibilités de signer les actes en janvier et de bénéficier des frais d'enregistrements à 3% information complémentaire à venir prendre en agence ! Infos et visites : 04/338.42.32 - Soir et week-end : 0471/64.89.30 mais aussi sur www.penoit.be
Rue des Chanterelles 115 - 4100 Seraing
Référence | 6289140 |
---|---|
Catégorie | Maison |
Meublé | Non |
Nombre de chambres | 2 |
Nombre de salles de bain | 2 |
Jardin | Oui |
Surface du jardin | 465 m² |
Garage | Oui |
Terrasse | Oui |
Parking | Non |
Surface habitable | 160 m² |
Surface du terrain | 1066 m² |
Disponibilité | 20/01/2025 |
Année de construction | 84 |
---|---|
Nombre de garage | 1 |
Parking extérieur | Non |
Parking(s) intérieur (nombre) | 1 |
Parking(s) extérieur (nombre) | 1 |
Type de toit | en pente |
Nombre d'étages | 1 |
---|
Accès handicapés | Non |
---|---|
Chauffage (ind/coll) (type (ind/coll)) | Chauffage mural |
Ascenseur | Non |
Double vitrage | Oui |
Chauffage (type) | Chauffage mural |
Type de cuisine | équipée |
Sdb (type) | douche |
Orientation du bâtiment (façade arrière) | sud |
---|---|
Type d'environnement | résidentiel |
Exposition de la façade avant | nord |
Risque d'inondation (type innondation) | pas situé en zone inondable |
Surface de terrasse 2 | 52 m² |
---|---|
Nbre de toilette(s) (nombre) | 2 |
Chambre 1 (surface) | 13 m² |
Chambre 2 (surface) | 11.3 m² |
Nbre de terrasse(s) (nombre) | 1 |
Salle de séjour (surface) | 20 m² |
Salle à manger (surface) | 12.3 m² |
Cuisine (surface) | 7.5 m² |
Bureau (surface) | 6 m² |
Volets | Oui |
---|---|
Volets (type) | Manuels |
Piscine | Non |
---|
Sous régime TVA | Non |
---|
Jugement en cours | Non |
---|---|
Permis de bâtir | Oui |
Permis de lotir | Non |
Droit de préemption | Non |
Affectation urbanistique | zone d'habitat |
Type d'intimation | pas de correction juridique ou mesure administrative imposée |
Égouts | Oui |
---|---|
Électricité | Oui |
Gaz | Oui |
Eau | Oui |
Châssis (type) | bois |
---|
Surface de terrasse 1 | 52 m² |
---|
Type de revêtement de sol | carrelages |
---|
Magasins | Oui |
---|---|
Ecoles | Oui |
Transports en commun | Oui |
Certificat d'électricité (oui/non) | oui, non conforme |
---|
Grenier | Oui |
---|---|
Cave | Oui |
Label PEB (classe) | D |
---|---|
PEB E-SPEC (kwh/m²/an) | 277 |
Emission CO2 (émission CO2) | 277 |
E total (Kwh/an) | 41601 |
PEB code unique | 20240913003384 |
PEB valide jusqu'au (datetime) | 13/09/2024 |
Date du PEB (datetime) | 13/09/2034 |