
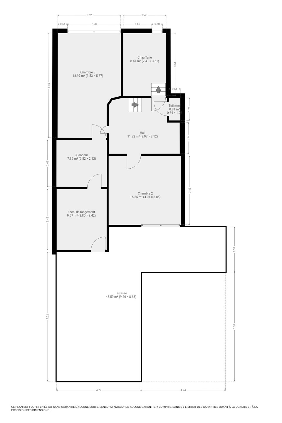
Magnifique maison 3 chambres située à Seraing. Au première étage; un hall d'entrée, un salon-salle à manger (27m²), une grande cuisine de 20m² , une première chambre à coucher de (13m²), une salle de bain (4 m²) et d'une toilette. Au rez-de-chaussée ; un hall spacieux de (11m²), une seconde chambre de 18m² pouvant servir pour une profession libérale accompagnée d'une buanderie (7m²), d'un local de rangement (10m²) d'une chaufferie (8m²) et d'une troisième chambre de (15m²) . Le bien a également une terrasse (48m²) et d'un jardin (110m²). Chauffage central au gaz. Châssis double vitrage PVC. Revenu cadastral de (708€). Indice PEB: C ; Numéro unique : 20240405012053 ; E Spec: 189 kWh/m².an ; E Total : 31 031 KWh/an. N'hésitez plus et venez la découvrir ! Possibilités de signer les actes en janvier et de bénéficier des frais d'enregistrements à 3% ! Infos et visites : 04/338.42.32 - Soir et week-end : 0471/64.89.30 mais aussi sur www.penoit.be
Rue Patenier 20 - 4100 Seraing
Référence | 6233662 |
---|---|
Catégorie | Maison |
Meublé | Non |
Nombre de chambres | 3 |
Nombre de salles de bain | 1 |
Jardin | Oui |
Surface du jardin | 140 m² |
Garage | Non |
Terrasse | Oui |
Surface habitable | 164 m² |
Surface du terrain | 332 m² |
Disponibilité | 30/01/2025 |
Année de construction | 1957 |
---|---|
Parking extérieur | Oui |
Année de rénovation | 2011 |
Parking(s) extérieur (nombre) | 2 |
Nombre d'étages | 1 |
---|
Accès handicapés | Non |
---|---|
Cuisine | Oui |
Chauffage (ind/coll) (type (ind/coll)) | individuel |
Ascenseur | Non |
Double vitrage | Oui |
Chauffage (type) | gaz |
Type de cuisine | amer. équipée |
Sdb (type) | douche |
Double vitrage (type) | isol. acoustique |
Date du dernier entretien de la chaudière | 08/03/2024 |
Buanderie | Oui |
---|
Nbre de toilette(s) (nombre) | 2 |
---|---|
Chambre 1 (surface) | 13 m² |
Chambre 2 (surface) | 15 m² |
Chambre 3 (surface) | 19 m² |
Nbre de terrasse(s) (nombre) | 1 |
Salle de séjour (surface) | 27 m² |
Cuisine (surface) | 20 m² |
Volets | Oui |
---|---|
Volets (type) | électriques |
Piscine | Non |
---|
Égouts | Oui |
---|---|
Électricité | Oui |
Gaz | Oui |
Châssis (type) | pvc |
---|
Type d'environnement | banlieue |
---|---|
Risque d'inondation (type innondation) | pas situé en zone inondable |
Risque d'inondation 2023 (type innondation) | Classe A (aucune chance) |
Surface de terrasse 1 | 20 m² |
---|
Type de revêtement de sol | carrelages |
---|
Revenu cadastral (€) (montant) | 718 € |
---|
Magasins | Oui |
---|---|
Ecoles | Oui |
Transports en commun | Oui |
Plage | Oui |
Centre sportif | Oui |
Autoroute | Oui |
Certificat d'électricité (oui/non) | oui, conforme |
---|---|
Certificat électricité - date | 26/04/2011 |
Label PEB (classe) | C |
---|---|
PEB E-SPEC (kwh/m²/an) | 189 |
Emission CO2 (émission CO2) | 37 |
E total (Kwh/an) | 31031 |
PEB code unique | 20240405012053 |
PEB valide jusqu'au (datetime) | 05/04/2034 |
Date du PEB (datetime) | 05/04/2024 |