
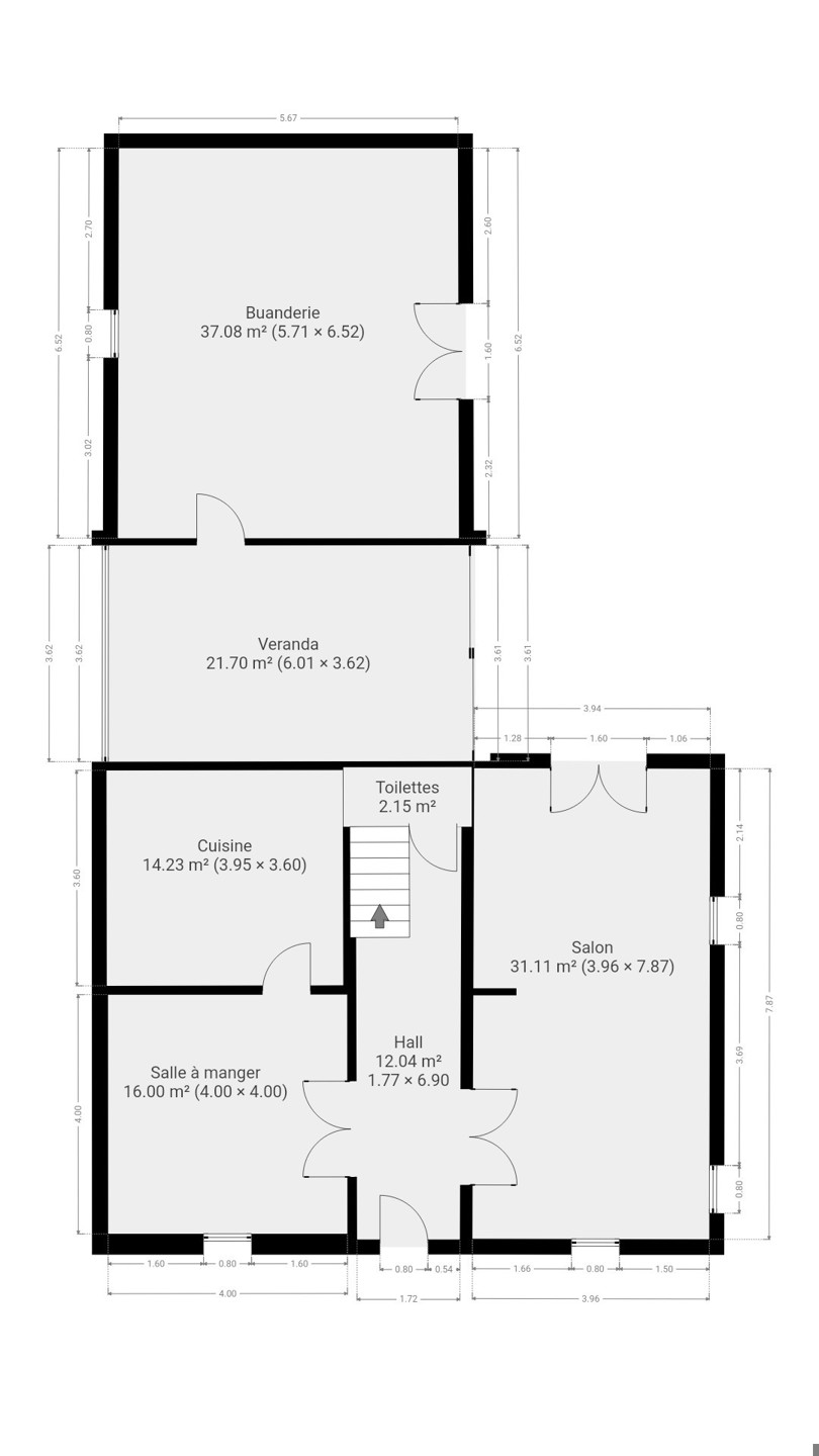
Cette charmante maison 6 chambres située à Boncelles vous offre de multiples possibilités d'aménagements dont la possibilité d'exercer une profession libérale. Au rez-de-chaussée ; hall d'entrée, salon (31m²), salle à manger (16m²), cuisine (14m²), véranda (22m²), buanderie (37m²) et W-C indépendant. Au 1er étage ; 3 chambres (14m², 16m² et 12m²), salle de douche (10m²) et une salle de jeu (37m²). Au 2ème étage ; 3 chambres (16m², 16m² et 18m²) et une salle de douche (15m²). Au sous-sol ; cave (14m²) . La maison possède une terrasse (95m²) avec un jardin (100m²), un garage/atelier (39m²) avec une possibilité d'y mettre 2 voitures ainsi qu'une mezzanine. La toiture a été entièrement refaite en 2021. Le revenu cadastral est de 966€. PEB : C - N° unique : 20240613014452 ; E Spec : 176 kWh/m².an ; E Total : 48 248 kWh/an. N'hésitez plus et venez découvrir cette opportunité unique !! Infos et Visites : 04/338.42.32 - Soir et Week-end : 0498/59.32.24 ou sur www.penoit.be
Rue Wagner 46 - 4100 Seraing
Référence | 5991526 |
---|---|
Catégorie | Maison |
Meublé | Non |
Nombre de chambres | 6 |
Nombre de salles de bain | 2 |
Jardin | Oui |
Surface du jardin | 100 m² |
Garage | Oui |
Terrasse | Oui |
Parking | Oui |
Surface habitable | 325 m² |
Surface du terrain | 519 m² |
Disponibilité | 14/10/2024 |
Année de construction | 1850 |
---|---|
Nombre de garage | 1 |
Parking intérieur | Oui |
Parking extérieur | Oui |
Parking(s) intérieur (nombre) | 2 |
Parking(s) extérieur (nombre) | 4 |
Type de toit | en pente |
Nombre d'étages | 2 |
---|
Accès handicapés | Non |
---|---|
Cuisine | Oui |
Chauffage (ind/coll) (type (ind/coll)) | individuel |
Ascenseur | Non |
Double vitrage | Oui |
Chauffage (type) | gaz (chau. centr.) |
Type de cuisine | non-équipée |
Sdb (type) | douche |
Orientation du bâtiment (façade arrière) | ouest |
---|---|
Type d'environnement | zone d'habitation |
Type d'environnement 2 | zone d'habitation |
Exposition de la façade avant | ouest |
Risque d'inondation (type innondation) | pas situé en zone inondable |
Largeur front de rue | 25 |
---|---|
Surface bâtie (surf. bât. princ.) | 262 |
Nbre de toilette(s) (nombre) | 2 |
Chambre 1 (surface) | 14 m² |
Chambre 2 (surface) | 16 m² |
Chambre 3 (surface) | 12 m² |
Chambre 4 (surface) | 16 m² |
Chambre 5 (surface) | 16 m² |
Largeur de façade | 13 |
Nbre de terrasse(s) (nombre) | 1 |
Salle de séjour (surface) | 31 m² |
Salle à manger (surface) | 16 m² |
Cuisine (surface) | 14 m² |
Orientation de la terrasse 1 | est |
Buanderie | Oui |
---|---|
Véranda | Oui |
Cave | Oui |
Piscine | Non |
---|
Sous régime TVA | Non |
---|---|
Loué | Non |
Servitude | Non |
---|---|
Jugement en cours | Non |
Égouts | Oui |
---|---|
Électricité | Oui |
Télévision par cable | Oui |
Gaz | Oui |
Eau | Oui |
Câbles téléphoniques | Oui |
Châssis (type) | bois |
---|
Surface de terrasse 1 | 95 m² |
---|
Type de revêtement de sol | carrelages |
---|
Revenu cadastral (€) (montant) | 966 € |
---|
Magasins | Oui |
---|---|
Ecoles | Oui |
Transports en commun | Oui |
Centre sportif | Oui |
Autoroute | Oui |
Certificat d'électricité (oui/non) | oui, non conforme |
---|
Label PEB (classe) | C |
---|---|
PEB E-SPEC (kwh/m²/an) | 176 |
Emission CO2 (émission CO2) | 176 |
E total (Kwh/an) | 48248 |
PEB code unique | 20240613014452 |
PEB valide jusqu'au (datetime) | 13/06/2034 |
Date du PEB (datetime) | 13/06/2024 |