
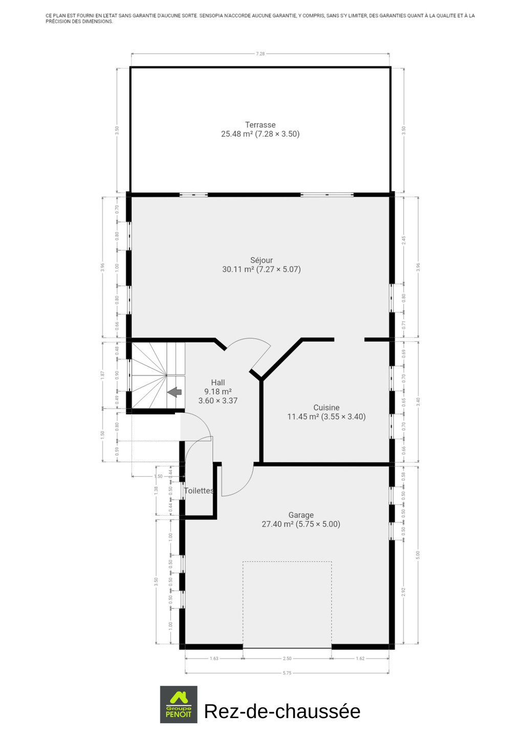
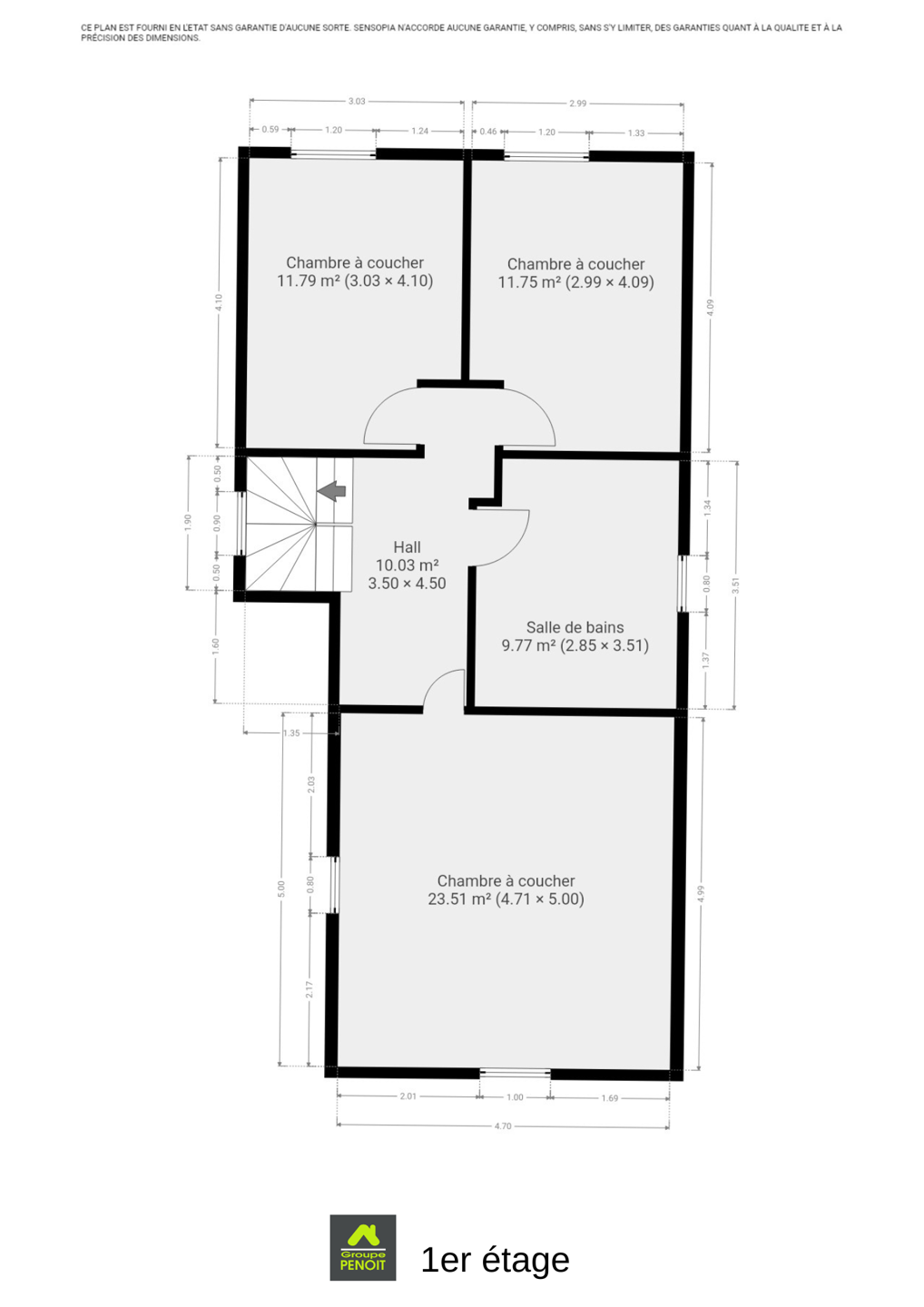
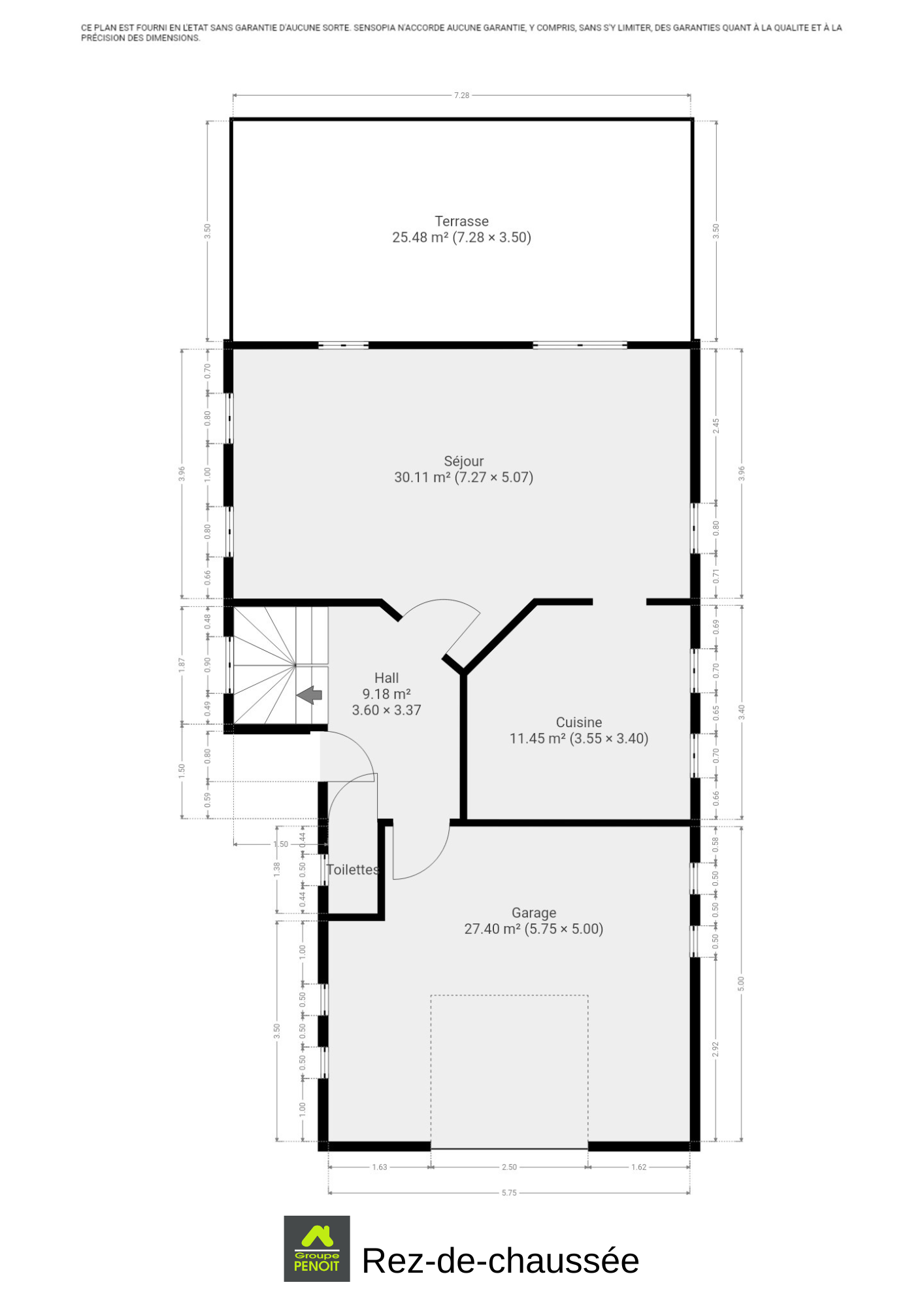
Située dans un quartier paisible et verdoyant de Boncelles, cette agréable maison unifamiliale vous séduira par ses volumes généreux, sa luminosité naturelle et son environnement calme, idéal pour une vie de famille. Dès l’entrée, vous découvrirez au rez-de-chaussée un hall d'entrée desservant un vaste séjour de 30 m², parfait pour accueillir vos moments de détente ou vos repas en famille. Cet espace de vie convivial s’ouvre directement sur une cuisine entièrement équipée de 11 m². Une première toilette indépendante complète utilement ce niveau. À l’étage, le bien dispose de trois chambres confortables de 12, 12 et 24 m². La salle de bain de 10 m² est équipée à la fois d’une douche et d’une baignoire, pour répondre à tous les besoins du quotidien. La maison dispose également d’un grenier de rangement. Côté extérieur, vous profiterez d’une agréable terrasse de 25 m², parfaite pour vos repas en plein air, donnant sur un jardin de 400 m². Un garage de 27 m² complète ce bien, offrant un espace de stationnement ou de stockage supplémentaire. Une belle opportunité à saisir à Boncelles ! PEB D (numéro unique : 20250523005732) avec un E spec de 324 kWh/m².an et un E total de 68 800 kWh/an.N'attendez plus pour la découvrir ! Infos et visites au 04/338.42.32, ou retrouvez toutes les informations sur www.penoit.be.
Rue Vivaldi 44 - 4100 Seraing Boncelles
Référence | 6794091 |
---|---|
Catégorie | Maison |
Meublé | Non |
Nombre de chambres | 3 |
Nombre de salles de bain | 1 |
Jardin | Oui |
Surface du jardin | 400 m² |
Garage | Oui |
Terrasse | Oui |
Parking | Oui |
Surface habitable | 212 m² |
Surface du terrain | 627 m² |
Disponibilité | 26/05/2025 |
Année de construction | 1996 |
---|---|
Parking intérieur | Oui |
Parking extérieur | Oui |
Parking(s) intérieur (nombre) | 1 |
Parking(s) extérieur (nombre) | 1 |
Nombre d'étages | 1 |
---|
Accès handicapés | Non |
---|---|
Cuisine | Oui |
Chauffage (ind/coll) (type (ind/coll)) | Chauffage mural |
Ascenseur | Non |
Chauffage (type) | mazout (chauf. centr.) |
Type de cuisine | équipée |
Sdb (type) | douche |
Largeur front de rue | 16 |
---|---|
Surface bâtie (surf. bât. princ.) | 105 |
Nbre de toilette(s) (nombre) | 2 |
Chambre 1 (surface) | 12 m² |
Chambre 2 (surface) | 12 m² |
Chambre 3 (surface) | 24 m² |
Largeur de façade | 8 |
Salle de séjour (surface) | 30 m² |
Cuisine (surface) | 11 m² |
Salle de bain 1 (surface) | 10 m² |
Piscine | Non |
---|
Revenu cad. indexé (montant) | 2513 € |
---|---|
Section | B |
Numéro (n°) | E524e2 |
Surface (ha/a/ca) (surf. (ha/a/ca)) | 627 |
Sous régime TVA | Non |
---|
Servitude | Non |
---|---|
Jugement en cours | Non |
Permis de bâtir | Non |
Permis de lotir | Non |
Destination bâtiment (type) | privé - habitation |
Droit de préemption | Non |
Affectation urbanistique | zone d'habitat |
Intimation en justice | Non |
Type d'intimation | pas de correction juridique ou mesure administrative imposée |
Égouts | Oui |
---|---|
Électricité | Oui |
Télévision par cable | Oui |
Gaz | Oui |
Eau | Oui |
Type d'environnement | calme |
---|---|
Risque d'inondation (type innondation) | pas situé en zone inondable |
Surface de terrasse 1 | 25 m² |
---|
Magasins | Oui |
---|---|
Ecoles | Oui |
Transports en commun | Oui |
Centre sportif | Oui |
Certificat d'électricité (oui/non) | oui, non conforme |
---|
Label PEB (classe) | D |
---|---|
PEB E-SPEC (kwh/m²/an) | 324 |
Emission CO2 (émission CO2) | 80 |
E total (Kwh/an) | 68800 |
PEB code unique | 20250523005732 |