
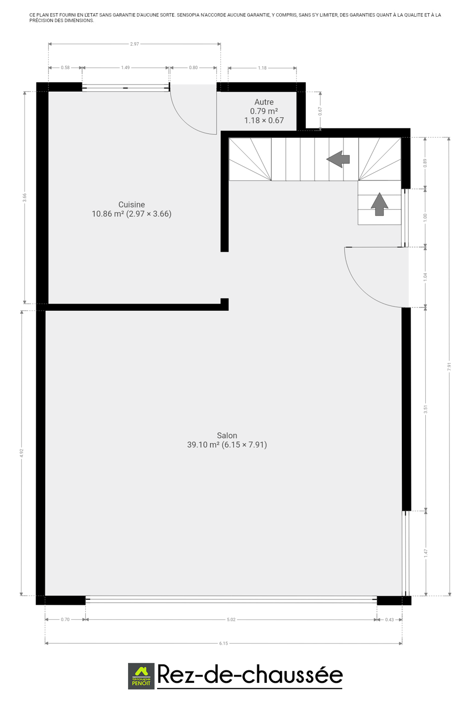
Jolie petite maison 3 façades dans une rue calme de Boncelles. Au rez-de-chaussée ; un living ( m²), une cuisine (m²) avec accès a la terrasse (9m²) et au jardin (74m²). A l'étage ; 3 chambres (8m², 12m² et 11m²) et une salle de bain (m²). Cette maison possède également un garage et des places de parking extérieur. Chauffage central au gaz, chaudière à condensation ( 2022 ), Châssis PVC, double vitrage, rénovation toiture de 2022. Isolation du pignon arrière. PEB C N° unique 20240124006871; E spec 179kWh/m².an ; E Total : 20.899 kWh/an. RC: 713€ N'hésitez plus et venez découvrir cette opportunité unique !! Infos et Visites : 04/338.42.32 - Soir et Week-end : 0498/59.32.24 ou sur www.penoit.be
avenue des sillons 11 - 4100 Seraing Boncelles
Référence | 6296030 |
---|---|
Catégorie | Maison |
Meublé | Non |
Nombre de chambres | 3 |
Nombre de salles de bain | 1 |
Jardin | Oui |
Surface du jardin | 74 m² |
Garage | Oui |
Terrasse | Oui |
Parking | Oui |
Surface habitable | 117 m² |
Surface du terrain | 310 m² |
Disponibilité | 01/01/2025 |
Année de construction | 1970 |
---|---|
Nombre de garage | 1 |
Parking intérieur | Oui |
Parking extérieur | Oui |
Nombre d'étages | 1 |
---|
Accès handicapés | Non |
---|---|
Ascenseur | Non |
Chauffage (type) | gaz |
Type de cuisine | séparée |
Nbre de toilette(s) (nombre) | 1 |
---|---|
Chambre 1 (surface) | 11 m² |
Chambre 2 (surface) | 12 m² |
Chambre 3 (surface) | 8 m² |
Piscine | Non |
---|
Type d'environnement | calme |
---|---|
Risque d'inondation (type innondation) | pas situé en zone inondable |
Surface de terrasse 1 | 9 m² |
---|
Type de revêtement de sol | carrelages |
---|
Revenu cadastral (€) (montant) | 713 € |
---|
Certificat d'électricité (oui/non) | oui, non conforme |
---|
Label PEB (classe) | C |
---|---|
PEB E-SPEC (kwh/m²/an) | 179 |
Emission CO2 (émission CO2) | 3868 |
E total (Kwh/an) | 20899 |
PEB code unique | 20240124006871 |
PEB valide jusqu'au (datetime) | 24/01/2034 |
Date du PEB (datetime) | 24/01/2024 |