
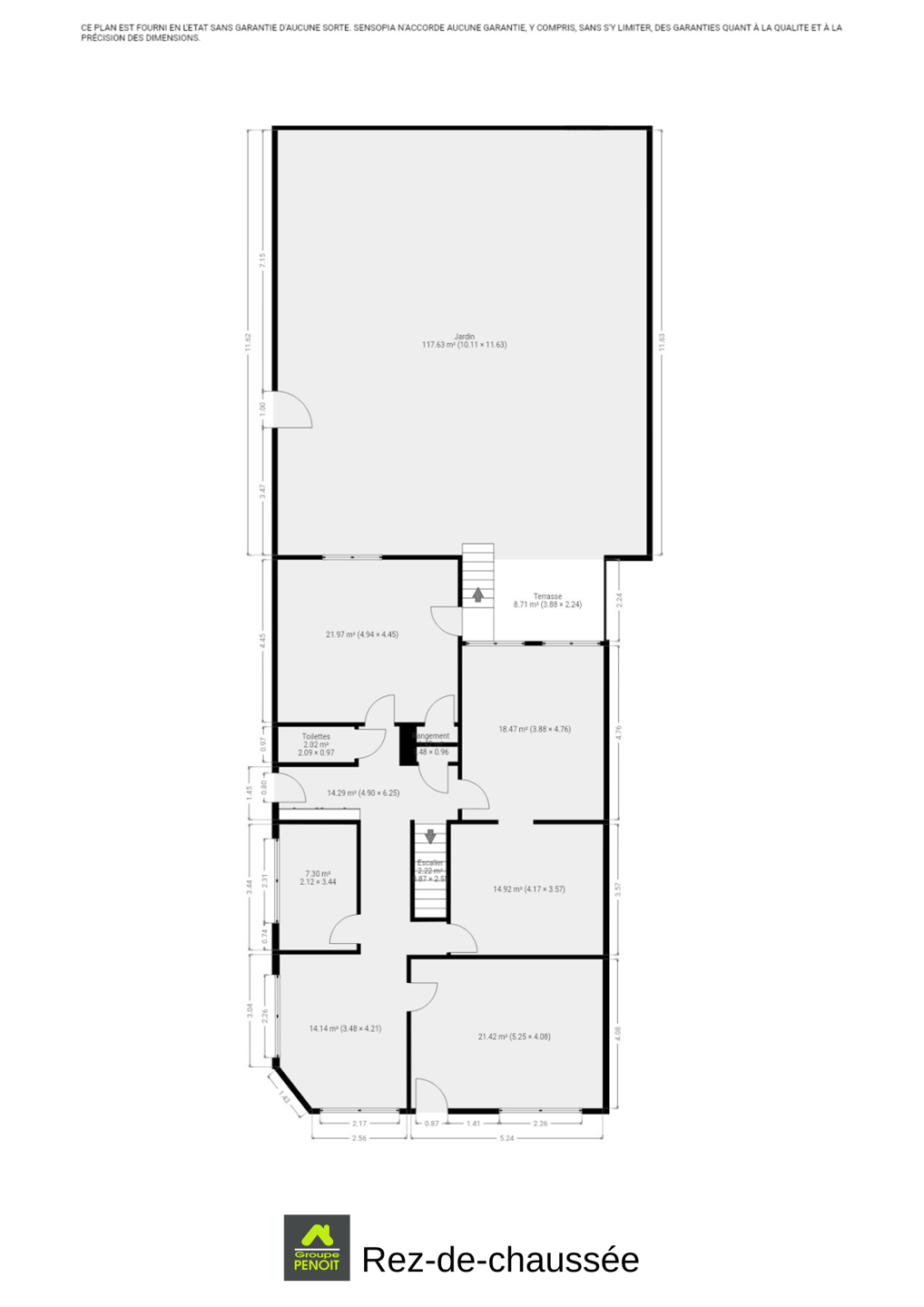
À saisir, bureaux professionnels de 314 m² à vendre, sécurisés et prêts à l’emploi. Idéal pour cabinet, coworking ou toute activité tertiaire. Il offre des espaces lumineux et modulables sur trois niveaux : 97 m² au rez-de-chaussée avec 6 pièces, arrivées d’eau et sanitaires, 52 m² au premier étage avec 4 espaces et un second point d’eau, 58 m² au deuxième étage avec 3 espaces et un troisième espace sanitaire. Un sous-sol de 113 m² est entièrement aménageable selon vos besoins : stockage, archives… À l’extérieur, une terrasse de 8 m², un jardin privatif de 118 m² complètent le bien. Équipé d’une installation électrique conforme, d’un chauffage central au gaz de ville, de châssis PVC double vitrage, ainsi que d’un système d’alarme et de vidéosurveillance. PEB D (numéro unique : 20250513017244) avec un E Spec de 264 kWh/m².an et un E Total de 82 710 kWh/an. N'attendez plus pour venir la découvrir ! Infos et visites au 04/338.42.32, ou retrouvez toutes les informations sur www.penoit.be.
Rue Ferrer 176 - 4100 Seraing
Référence | 7216218 |
---|---|
Catégorie | Immeuble de bureaux |
Meublé | Non |
Garage | Non |
Surface habitable | 314 m² |
Surface du terrain | 360 m² |
Disponibilité | 26/05/2025 |
Année de construction | 1950 |
---|---|
Parking intérieur | Non |
Parking extérieur | Non |
Nombre d'étages | 2 |
---|
Accès handicapés | Non |
---|---|
Nbre de toilette(s) (nombre) | 4 |
Ascenseur | Non |
Double vitrage | Oui |
Chauffage (type) | gaz (chau. centr.) |
Type de cuisine | non-équipée |
Double vitrage (type) | isol. thermique et acoustique |
Sous régime TVA | Non |
---|
Châssis (type) | pvc |
---|
Type d'environnement | central |
---|---|
Risque d'inondation (type innondation) | pas situé en zone inondable |
Surface de terrasse 1 | 9 m² |
---|
Certificat d'électricité (oui/non) | oui, conforme |
---|
PEB E-SPEC (kwh/m²/an) | 264 |
---|---|
Emission CO2 (émission CO2) | 48 |
E total (Kwh/an) | 82710 |
PEB code unique | 20250513017244 |
PEB valide jusqu'au (datetime) | 13/05/2035 |
Date du PEB (datetime) | 13/05/2025 |