
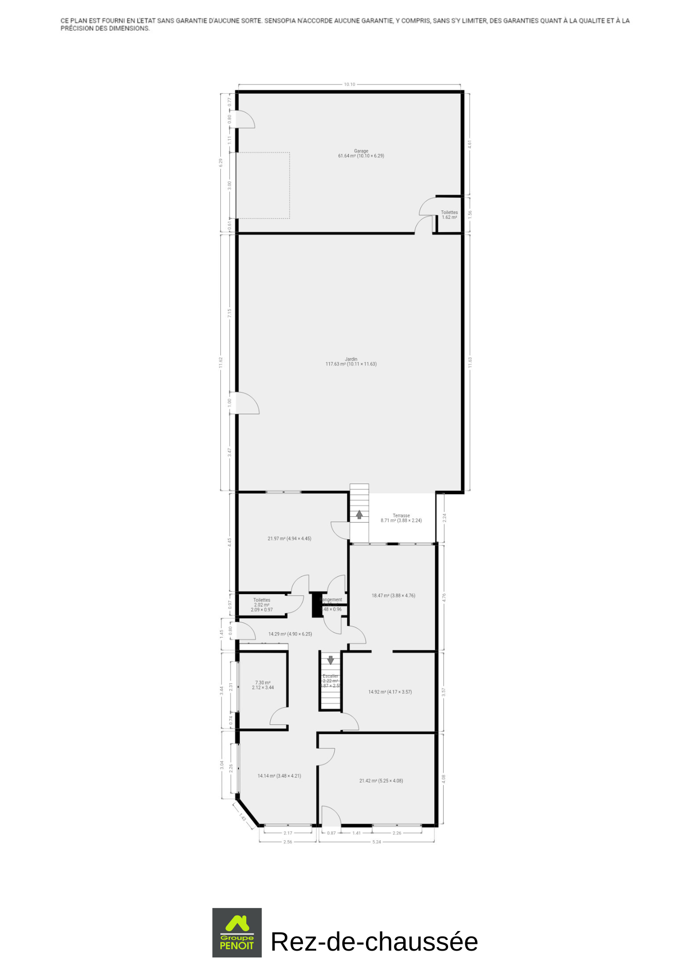
À saisir, bureaux professionnels de 314 m² à vendre, sécurisés et prêts à l’emploi. Il offre des espaces lumineux et modulables sur trois niveaux : 97 m² au rez-de-chaussée avec 6 pièces, arrivées d’eau et sanitaires, 52 m² au premier étage avec 4 espaces et un second point d’eau, 58 m² au deuxième étage avec 3 espaces et un troisième espace sanitaire. Un sous-sol de 113 m² est entièrement aménageable selon vos besoins : stockage, archives… À l’extérieur, une terrasse de 8 m², un jardin privatif de 118 m² et un garage de 62 m² avec porte électrique complètent le bien. Équipé d’une installation électrique conforme, d’un chauffage central au gaz de ville, de châssis PVC double vitrage, ainsi que d’un système d’alarme et de vidéosurveillance. Opportunité rare, fonctionnelle et sécurisée. PEB D (numéro unique : 20250513017244) avec un E Spec de 264 kWh/m².an et un E Total de 82 710 kWh/an. N'attendez plus pour venir la découvrir ! Infos et visites au 04/338.42.32, ou retrouvez toutes les informations sur www.penoit.be.
Rue Ferrer 176 - 4100 Seraing
Référence | 7216187 |
---|---|
Catégorie | Immeuble de bureaux |
Meublé | Non |
Garage | Oui |
Surface habitable | 314 m² |
Surface du terrain | 360 m² |
Disponibilité | 26/05/2025 |
Année de construction | 1950 |
---|---|
Nombre de garage | 1 |
Parking intérieur | Oui |
Parking extérieur | Non |
Nombre d'étages | 2 |
---|
Accès handicapés | Non |
---|---|
Nbre de toilette(s) (nombre) | 4 |
Ascenseur | Non |
Double vitrage | Oui |
Chauffage (type) | gaz (chau. centr.) |
Type de cuisine | non-équipée |
Double vitrage (type) | isol. thermique et acoustique |
Sous régime TVA | Non |
---|
Châssis (type) | pvc |
---|
Type d'environnement | central |
---|---|
Risque d'inondation (type innondation) | pas situé en zone inondable |
Surface de terrasse 1 | 9 m² |
---|
Certificat d'électricité (oui/non) | oui, conforme |
---|
PEB E-SPEC (kwh/m²/an) | 264 |
---|---|
Emission CO2 (émission CO2) | 48 |
E total (Kwh/an) | 82710 |
PEB code unique | 20250513017244 |
PEB valide jusqu'au (datetime) | 13/05/2035 |
Date du PEB (datetime) | 13/05/2025 |