Appartement - option v. - 4100 Seraing Boncelles -

Appartement - à vendre - 4100 Seraing Boncelles
1 1 50 m² PEB : C

Description

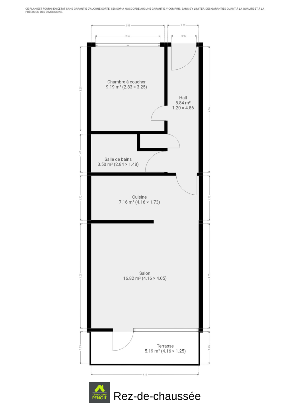
Le groupe PENOIT à le plaisir de vous présenter cet appartement situé au 5ème étage d’une résidence calme et bien entretenue sur les hauteurs de Boncelles. Cet appartement de 50 m² bénéficie d'une localisation stratégique à Boncelles : vous êtes à la fois proche des commerces de quartier et idéalement connecté aux axes menant directement au Sart Tilman (CHU/Université) et à Liège. Situé dans une résidence très bien entretenue, cet appartement est idéal pour un mode de vie sans souci. Il comprend un séjour lumineux, une chambre, une cuisine et une salle de bain, le tout complété par un balcon offrant une très jolie vue dégagée, parfait pour les moments de détente. TECHNIQUES: CC au gaz naturel. Electricité non conforme. Châssis bois SV. PEB C (numéro unique : 20250712003439) avec un E Spec de 248kWh/m².an et un E Total de 12321kWh/an. Parfait pour un premier achat ou un investissement locatif ! Demande de renseignement et planification de visite par téléphone au 04/338.42.32 ou par mail à l’adresse immo@penoit.be. Documents téléchargeables est visible sur www.penoit.be

Adresse

Rue Nicolas Fossoul 1 - 4100 Seraing Boncelles

Documents

Général

Référence 7275939
Catégorie Appartement
Meublé Non
Nombre de chambres 1
Nombre de salles de bain 1
Garage Non
Terrasse Oui
Parking Non
Surface habitable 50 m²
Disponibilité 14/01/2026

Bâtiment

Année de construction 1970
Nombre de garage 0
Parking intérieur Non
Parking extérieur Non

Nom, catégorie & situation

Etage 5
Nombre d'étages (numéro) 7

Equipement de base

Accès handicapés Non
Cuisine Oui
Ascenseur Oui
Chauffage (Format/energie) Chauffage mural
Type d'ascenseur personnes
Type de cuisine équipée
Sdb (Type) douche
Parlophone Oui

En chiffres

Nbre de toilette(s) (nombre) 1
Chambre 1 (surface) 9 m²
Nbre de terrasse(s) (nombre) 1
Salle de séjour (surface) 17 m²
Cuisine (surface) 7 m²
Salle de bain 1 (surface) 3 m²

Equipement extérieur

Piscine Non

Charges & Rendement

Sous régime TVA Non
Loué Oui
Habité (-) Oui

Sécurité

Contrôle d'accès Oui

Raccordements

Égouts Oui
Électricité Oui
Gaz Oui
Eau Oui

Équipements techniques

Châssis (Ouvertures) bois

Spécificités terrain

Type d'environnement calme
Risque d'inondation (type innondation) pas situé en zone inondable

Caractéristiques Principales

Surface de terrasse 1 5 m²

Cadastre

Revenu cadastral (€) (montant) 704.11 €

À proximité

Magasins Oui
Ecoles Oui
Transports en commun Oui
Centre sportif Oui
Autoroute Oui

Certificats / Attestations

Certificat d'électricité (oui/non) oui, non conforme

Energie

Label PEB (Classe) C
PEB E-SPEC (kwh/m²/an) (Consommation énergétique) 248
Emission CO2 (Emission GES) 46
E total (Kwh/an) 12321
PEB code unique (-) 20250712003439
PEB valide jusqu'au (validité) 12/07/2035
Date du PEB 12/07/2025
Prendre contact pour le bien : 7275939

* Champs obligatoires

Préférences pour les cookies

La protection de vos données personnelles est importante pour nous. C’est pourquoi nous détaillons ci-dessous les différents services et fonctionnalités du site qui utilisent des cookies et nous vous laissons décider des cookies que vous souhaitez autoriser ou refuser.

Veuillez cependant noter que si vous bloquez certains types de cookies, cela pourrait impacter votre expérience de navigation sur notre site ainsi que les fonctionnalités disponibles.

Nous utilisons des cookies fonctionnels obligatoires pour assurer le bon fonctionnement du site. Ils sont, par exemple, nécessaires pour retrouver le résultat d’une recherche ou enregistrer le choix de la langue.

Certaines fonctionnalités, comme l’affichage de vidéos ou de cartes géographiques, sont assurées via des composants externes développés par des partenaires comme YouTube ou Google. Certains composants utilisent des cookies qui sont susceptibles de permettre à ces tiers de suivre le comportement des internautes afin, par exemple, de réaliser du ciblage publicitaire. L’activation de ces fonctionnalités et des cookies associés est donc soumis à votre consentement.