
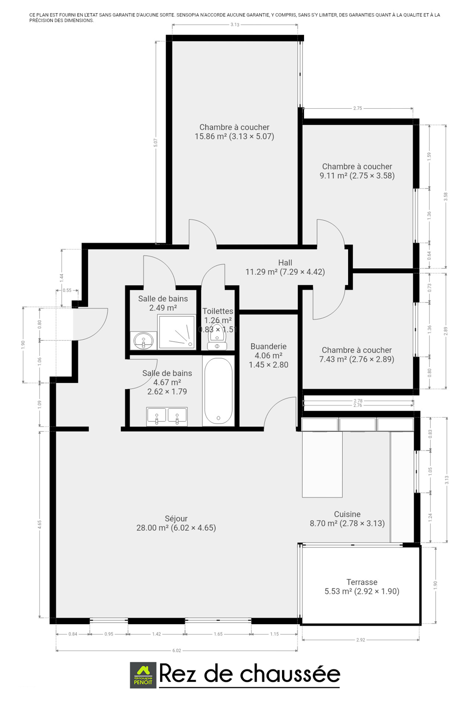
Magnifique appartement au troisième étage dans une nouvelle résidence de 2017,composé d'un séjour (28m²), superbe cuisine ouverte totalement équipée, hall (11m²), une salle douche (3m²) et une salle de bain (5m²),wc indépendant, ainsi que 3 chambres lumineuses (16, 9, 8m²), balcon exposé EST de 5.50m². Les matériaux choisis sont de qualités, VMC double flux, PVC Double vitrage avec film solaire, ascenseur, vidéo-parlophone, porte blindée, badge d'accès . L'appartement dispose de 2 places de parking intérieures, d'une cave et d'un local poubelle. PEB A code unique 20181214505180. Chauffage central chaudière à pellet à silo. Panneaux photovoltaïques pour les communs. 200€ de charges (provisions pour les communs + fond de réserve). Adoucisseur d'eau pour l'ensemble de la copropriété. Disponibilité à convenir. N'hésitez plus et contactez nous au 04/338.42.32 ou 0498/59.32.24 ou sur www.penoit.be
Rue du Travail 5 Boîte 33 - 4100 Seraing Boncelles
Référence | 6359246 |
---|---|
Catégorie | Appartement |
Meublé | Non |
Nombre de chambres | 3 |
Nombre de salles de bain | 2 |
Garage | Oui |
Terrasse | Oui |
Parking | Oui |
Surface habitable | 116 m² |
Disponibilité | 01/03/2025 |
Année de construction | 2017 |
---|---|
Parking intérieur | Oui |
Parking extérieur | Oui |
Parking(s) intérieur (nombre) | 2 |
Nombre d'étages | 1 |
---|
Accès handicapés | Oui |
---|---|
Chauffage (ind/coll) (type (ind/coll)) | poêle central |
Ascenseur | Oui |
Double vitrage | Oui |
Chauffage (type) | Chauffage mural |
Type d'ascenseur | personnes |
Type de cuisine | amer. équipée |
Sdb (type) | douche et bain |
Double vitrage (type) | isol. thermique et acoustique |
Parlophone | Oui |
Videophone | Oui |
Buanderie | Oui |
---|---|
Cave | Oui |
Nbre de toilette(s) (nombre) | 1 |
---|---|
Chambre 1 (surface) | 16 m² |
Chambre 2 (surface) | 9 m² |
Chambre 3 (surface) | 7 m² |
Nbre de terrasse(s) (nombre) | 1 |
Salle de séjour (surface) | 28 m² |
Cuisine (surface) | 10 m² |
Salle de bain 1 (surface) | 5 m² |
Orientation de la terrasse 1 | est |
Piscine | Non |
---|
Sous régime TVA | Non |
---|
Contrôle d'accès | Oui |
---|---|
Porte blindée | Oui |
Servitude | Non |
---|---|
Jugement en cours | Non |
Destination bâtiment (type) | im. rapport appartement |
Droit de préemption | Non |
Affectation urbanistique | zone d'habitat |
Intimation en justice | Non |
Électricité | Oui |
---|---|
Câbles téléphoniques | Oui |
Eau | Oui |
Châssis (type) | pvc |
---|
Type d'environnement | banlieue |
---|---|
Type d'environnement 2 | calme |
Exposition de la façade avant | est |
Risque d'inondation (type innondation) | pas situé en zone inondable |
Risque d'inondation 2023 (type innondation) | Classe A (aucune chance) |
Attestation du sol | Oui |
---|---|
Certificat d'électricité (oui/non) | oui, conforme |
Surface de terrasse 1 | 5.53 m² |
---|
Revenu cadastral (€) (montant) | 1800 € |
---|
Magasins | Oui |
---|---|
Ecoles | Oui |
Transports en commun | Oui |
Centre sportif | Oui |
Autoroute | Oui |
Label PEB (classe) | A |
---|---|
PEB E-SPEC (kwh/m²/an) | 71 |
Emission CO2 (émission CO2) | 5.69 |
E total (Kwh/an) | 8135 |
PEB code unique | 20181214505180 |
PEB valide jusqu'au (datetime) | 14/12/2028 |
Date du PEB (datetime) | 14/12/2014 |
Point de rendez-vous pour la visite en ligne (détails) | en semaine 9-17h ou we possible prévenir 24h à l'avance |
---|